95 Terlinga Road, Mount Torrens
House
Price Guide - $1,050,000 - $1,150,000
Escape to the sublime on 1.3 breathtaking hectares...
The views alone command respect, yet this home's 18-year rewrite by tireless owners, merging vogue themes and rustic charm, only enhances its soul-soothing cascade of hills magic...
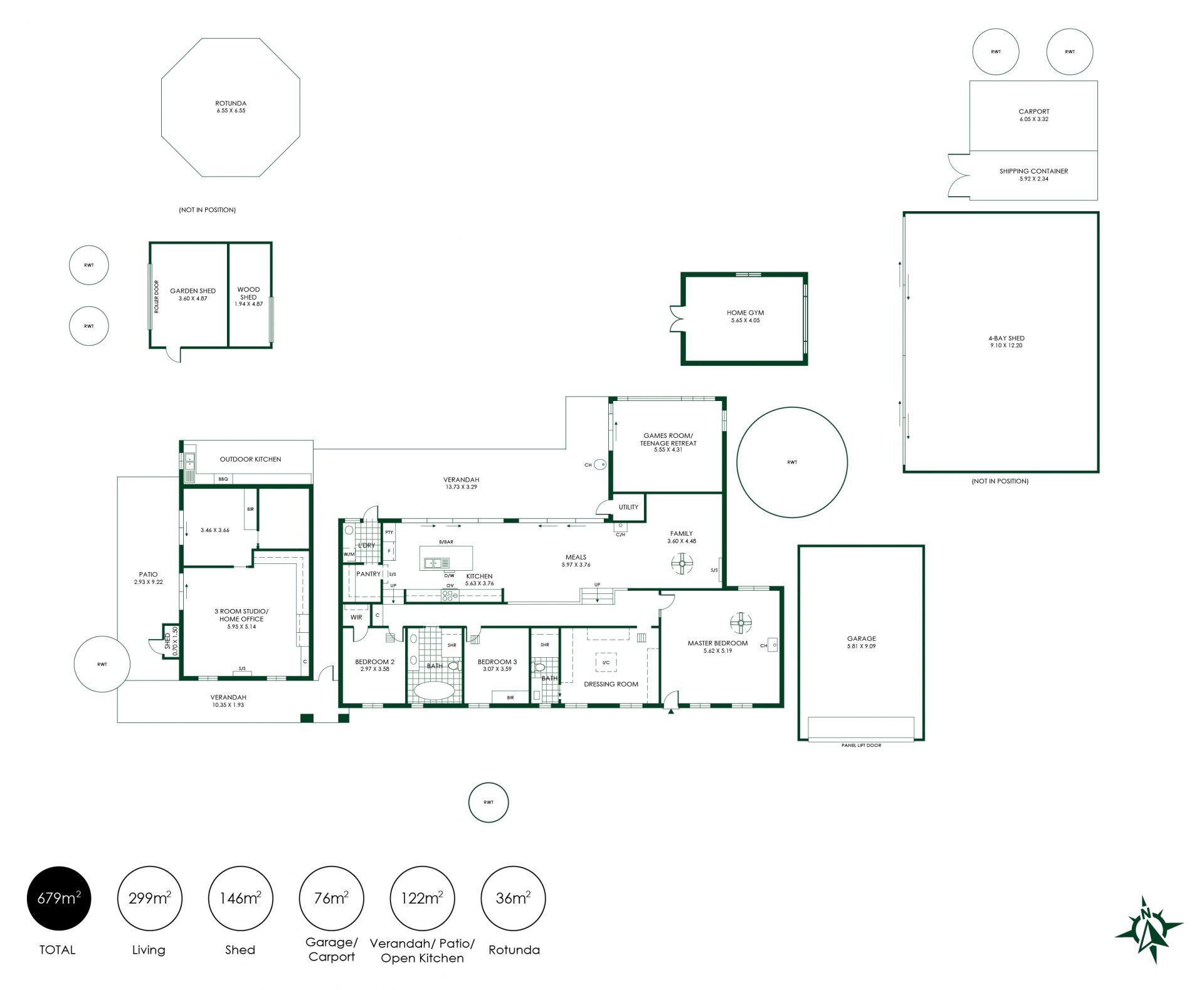
It's eclectic, edgy, and engaging. Beyond the circular bitumen driveway, secure 2-car garage and 4-bay shedding, a breezeway splices the 3-roomed studio/home office from the up to 4-bedroom home, and collectively – including the workshop and flexible outbuildings – it's incredible.
Where 6mm double glazing and retractable screens provide the kitchen, meals, and family zone a gum-studded garden reveal, and the sweeping veranda with enclosable blinds and a chiminea lures the ensuing crowd to the outdoor BBQ kitchen, its stainless benchtops, splashbacks, sink and obligatory bar fridge.
Inside, the custom 2-pac kitchen hosts a 5-burner gas stove, 900mm oven, waterfall benchtops, integrated dishwasher, and bespoke pendants; also aloft, are hefty timber beams sourced from the Gumeracha cold stores.
For the kids (or as a guest/4th bedroom) the games room steals rural bliss via picture panes; the detached gym (or creative studio) also owns to-die-for views; yet nowhere is more grounding than the rotunda, where butterflies circle the Buddleia bushes; namaste...
To the bedrooms, where the master – extra to its combustion fire warmth and lofty ceilings – adds lavish real estate via an adjoining dressing room through to master bathroom.
The family bathroom is yet another enviable spectacle of tactile concrete and timber, reinforcing its raw luxe.
As for the hand-reared grounds, wander its pebbled paths amongst hedging, retained rock walls, a wisteria-clad arbour, evergreen masses of native grasses, saltbush and pig's ears, plus weeping cherries, and crepe myrtles, stopping for the fire pit, water feature, and glorious gully views for the most serendipitous way to catch your breath…
There's so much more to this exceptional 1.384ha:
9.7kW solar
Dual garage with auto panel lift door
4-bay shedding
Commercial sliding glass doors with 6mm double glazing & Centor retractable screens
Farm gates to rear yard
Thermal rated glazing to front
Ducted evaporative cooling, 2 x 5kW split systems & ceiling fans
2 combustion fireplaces (master & living)
Butler's wing / laundry storage
WIR to bedroom 2 / BIR to bedroom 3
Boundless rotunda views
Dam (& neighbouring dam views)
Almond, fig, apple, pear, citrus & stone fruit trees
Chook yard, woodshed & vegie gardens
Rain & bore water
Buyers: a mid-January settlement is sought.
*Land size approx.
Adcock Real Estate - RLA66526
Andrew Adcock 0418 816 874
Nikki Seppelt 0437 658 067
Jake Adcock 0432 988 464
*Whilst every endeavour has been made to verify the correct details in this marketing neither the agent, vendor or contracted illustrator take any responsibility for any omission, wrongful inclusion, misdescription or typographical error in this marketing material. Accordingly, all interested parties should make their own enquiries to verify the information provided.
The floor plan included in this marketing material is for illustration purposes only, all measurement are approximate and is intended as an artistic impression only. Any fixtures shown may not necessarily be included in the sale contract and it is essential that any queries are directed to the agent. Any information that is intended to be relied upon should be independently verified.
The views alone command respect, yet this home's 18-year rewrite by tireless owners, merging vogue themes and rustic charm, only enhances its soul-soothing cascade of hills magic...
It's eclectic, edgy, and engaging. Beyond the circular bitumen driveway, secure 2-car garage and 4-bay shedding, a breezeway splices the 3-roomed studio/home office from the up to 4-bedroom home, and collectively – including the workshop and flexible outbuildings – it's incredible.
Where 6mm double glazing and retractable screens provide the kitchen, meals, and family zone a gum-studded garden reveal, and the sweeping veranda with enclosable blinds and a chiminea lures the ensuing crowd to the outdoor BBQ kitchen, its stainless benchtops, splashbacks, sink and obligatory bar fridge.
Inside, the custom 2-pac kitchen hosts a 5-burner gas stove, 900mm oven, waterfall benchtops, integrated dishwasher, and bespoke pendants; also aloft, are hefty timber beams sourced from the Gumeracha cold stores.
For the kids (or as a guest/4th bedroom) the games room steals rural bliss via picture panes; the detached gym (or creative studio) also owns to-die-for views; yet nowhere is more grounding than the rotunda, where butterflies circle the Buddleia bushes; namaste...
To the bedrooms, where the master – extra to its combustion fire warmth and lofty ceilings – adds lavish real estate via an adjoining dressing room through to master bathroom.
The family bathroom is yet another enviable spectacle of tactile concrete and timber, reinforcing its raw luxe.
As for the hand-reared grounds, wander its pebbled paths amongst hedging, retained rock walls, a wisteria-clad arbour, evergreen masses of native grasses, saltbush and pig's ears, plus weeping cherries, and crepe myrtles, stopping for the fire pit, water feature, and glorious gully views for the most serendipitous way to catch your breath…
There's so much more to this exceptional 1.384ha:
9.7kW solar
Dual garage with auto panel lift door
4-bay shedding
Commercial sliding glass doors with 6mm double glazing & Centor retractable screens
Farm gates to rear yard
Thermal rated glazing to front
Ducted evaporative cooling, 2 x 5kW split systems & ceiling fans
2 combustion fireplaces (master & living)
Butler's wing / laundry storage
WIR to bedroom 2 / BIR to bedroom 3
Boundless rotunda views
Dam (& neighbouring dam views)
Almond, fig, apple, pear, citrus & stone fruit trees
Chook yard, woodshed & vegie gardens
Rain & bore water
Buyers: a mid-January settlement is sought.
*Land size approx.
Adcock Real Estate - RLA66526
Andrew Adcock 0418 816 874
Nikki Seppelt 0437 658 067
Jake Adcock 0432 988 464
*Whilst every endeavour has been made to verify the correct details in this marketing neither the agent, vendor or contracted illustrator take any responsibility for any omission, wrongful inclusion, misdescription or typographical error in this marketing material. Accordingly, all interested parties should make their own enquiries to verify the information provided.
The floor plan included in this marketing material is for illustration purposes only, all measurement are approximate and is intended as an artistic impression only. Any fixtures shown may not necessarily be included in the sale contract and it is essential that any queries are directed to the agent. Any information that is intended to be relied upon should be independently verified.
