17 John Street, Woodside
House
Family-proven & vehicle perfect
Follow Woodside's familiar cushion of countryside to an eruption of colour framing the bay windowed, 1992 home on 1278sqm of immaculate grounds with dual driveways making it a cinch to reach the 3-bedroom home's biggest hitter - a detached rear garage grabbing priceless side gate entry and sized to potter in - or fit out as a she-shed or man-cave!
For the mature couple or family, this 3-bedroom, 2-bathroom home walks the talk, and code for "come in" is its garden arrival flanked by silver birch, hedging, seaside daisies, and a riot of sweetly scented David Austin roses.
Not to mention the working section of the garden; beyond the pittosporum hedge reveals a rear harvest of vegies, citrus, passionfruit, nectarines, peaches, and Satsuma plums - all bound for the grazing platter to be enjoyed on the paved and walled alfresco; with the dappled shade of ornamental pears above a runway of lawn.
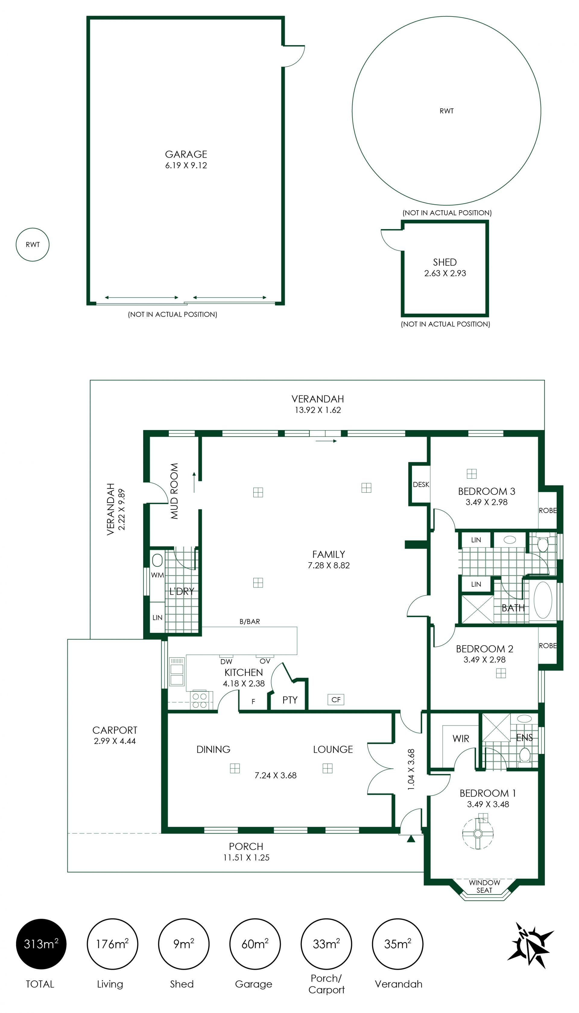
As for the home, its light-filled and neutral interiors offer a layout completely on point: a timber floor entry first steering the bay-windowed master away for walk-in robes, an ensuite, ceiling fan, and garden views.
Opposite, the carpeted lounge extends its span for formal dining or home office space; as the adjoining kitchen breezes through the home's heart – past a Miele dishwasher, gas cooktop, Bosch pyrolytic steam oven, and spacious pantry - to the tiled open plan expanse cosied by a combustion fire, soaking in the enveloping garden views.
Bedrooms 2 and 3 stepping to the side, both offer robes and catch sight of the gardens through light-gifting panes; all within reach of the 3-way heritage-tiled bathroom and separate WC.
And with the separate carport sitting under the main roof, bringing home the shopping, or returning to the kitchen with the garden's bounty has never been easier with back door laundry and mud room – there really is something for everyone.
From main street shopping to leisurely bike rides, the famed Providore, and award-winning cellar doors; to the locally applauded supermarket and Woodside Primary in a morning minute.
Join a family-loved community, and everything else will simply fall into place…
We know you'll love:
1992-built family home on a 1278sqm fully landscaped allotment
Valuable dual driveways
9 ft ceilings
Bay-windowed master bedroom with WIR & ensuite + c/fan
Dual living spaces
Ducted r/c a/c + combustion fire to north facing family room.
Kitchen with Baltic pine cabinetry, gas cooker, Bosch pyrolytic steam oven + Miele d/w
Laundry + mudroom practicality
Shed with power & concrete floor + Single carport + garden shedding.
40,000 L rainwater tank plumbed to house (except toilet and garden)
Wool carpets and quality window dressings
Orchard of nectarine, peach, espaliered lemon, satsuma plum, lime tree
Raised veggie beds, ornamental pears in alfresco, David Austin roses.
Property Information:
Title Reference: 5398/183
Zoning: Township
Year Built: 1992
Council Rates: $3,020 per annum (approx.)
Water Rates: $TBA per quarter
*Estimated rental assessment: $610 - $630 per week (written rental assessment can be provided upon request)
Adcock Real Estate - RLA66526
Andrew Adcock 0418 816 874
Nikki Seppelt 0437 658 067
Jake Adcock 0432 988 464
*Whilst every endeavour has been made to verify the correct details in this marketing neither the agent, vendor or contracted illustrator take any responsibility for any omission, wrongful inclusion, misdescription or typographical error in this marketing material. Accordingly, all interested parties should make their own enquiries to verify the information provided.
The floor plan included in this marketing material is for illustration purposes only, all measurement are approximate and is intended as an artistic impression only. Any fixtures shown may not necessarily be included in the sale contract and it is essential that any queries are directed to the agent. Any information that is intended to be relied upon should be independently verified.
Property Managers have provided a written rental assessment based on images, floor plan and information provided by the Agent/Vendor – an accurate rental appraisal figure will require a property viewing.
For the mature couple or family, this 3-bedroom, 2-bathroom home walks the talk, and code for "come in" is its garden arrival flanked by silver birch, hedging, seaside daisies, and a riot of sweetly scented David Austin roses.
Not to mention the working section of the garden; beyond the pittosporum hedge reveals a rear harvest of vegies, citrus, passionfruit, nectarines, peaches, and Satsuma plums - all bound for the grazing platter to be enjoyed on the paved and walled alfresco; with the dappled shade of ornamental pears above a runway of lawn.
As for the home, its light-filled and neutral interiors offer a layout completely on point: a timber floor entry first steering the bay-windowed master away for walk-in robes, an ensuite, ceiling fan, and garden views.
Opposite, the carpeted lounge extends its span for formal dining or home office space; as the adjoining kitchen breezes through the home's heart – past a Miele dishwasher, gas cooktop, Bosch pyrolytic steam oven, and spacious pantry - to the tiled open plan expanse cosied by a combustion fire, soaking in the enveloping garden views.
Bedrooms 2 and 3 stepping to the side, both offer robes and catch sight of the gardens through light-gifting panes; all within reach of the 3-way heritage-tiled bathroom and separate WC.
And with the separate carport sitting under the main roof, bringing home the shopping, or returning to the kitchen with the garden's bounty has never been easier with back door laundry and mud room – there really is something for everyone.
From main street shopping to leisurely bike rides, the famed Providore, and award-winning cellar doors; to the locally applauded supermarket and Woodside Primary in a morning minute.
Join a family-loved community, and everything else will simply fall into place…
We know you'll love:
1992-built family home on a 1278sqm fully landscaped allotment
Valuable dual driveways
9 ft ceilings
Bay-windowed master bedroom with WIR & ensuite + c/fan
Dual living spaces
Ducted r/c a/c + combustion fire to north facing family room.
Kitchen with Baltic pine cabinetry, gas cooker, Bosch pyrolytic steam oven + Miele d/w
Laundry + mudroom practicality
Shed with power & concrete floor + Single carport + garden shedding.
40,000 L rainwater tank plumbed to house (except toilet and garden)
Wool carpets and quality window dressings
Orchard of nectarine, peach, espaliered lemon, satsuma plum, lime tree
Raised veggie beds, ornamental pears in alfresco, David Austin roses.
Property Information:
Title Reference: 5398/183
Zoning: Township
Year Built: 1992
Council Rates: $3,020 per annum (approx.)
Water Rates: $TBA per quarter
*Estimated rental assessment: $610 - $630 per week (written rental assessment can be provided upon request)
Adcock Real Estate - RLA66526
Andrew Adcock 0418 816 874
Nikki Seppelt 0437 658 067
Jake Adcock 0432 988 464
*Whilst every endeavour has been made to verify the correct details in this marketing neither the agent, vendor or contracted illustrator take any responsibility for any omission, wrongful inclusion, misdescription or typographical error in this marketing material. Accordingly, all interested parties should make their own enquiries to verify the information provided.
The floor plan included in this marketing material is for illustration purposes only, all measurement are approximate and is intended as an artistic impression only. Any fixtures shown may not necessarily be included in the sale contract and it is essential that any queries are directed to the agent. Any information that is intended to be relied upon should be independently verified.
Property Managers have provided a written rental assessment based on images, floor plan and information provided by the Agent/Vendor – an accurate rental appraisal figure will require a property viewing.
