6/5 Mount Torrens Road, Lobethal
House
Rise for freedom & lifestyle in a sleek, downsizer's dream.
There's nothing quite like the "top of the world" vibes only Lobethal and the scenic Kenton Valley can provide. And here, this immaculate four-bedroom home on a retained and meticulously maintained 577sqm block makes the most of it - primed for memorable, year-round entertaining.
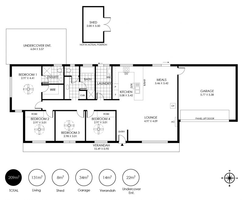
Built in 2019 and presenting as-new, the home opens to clean lines, timber-look floors, abundant natural light, and a layout that'll breeze through any white-glove test; the cosy combustion fire radiates warmth throughout the interconnecting living, meals and kitchen zones, with summers appeased by split system comfort.
The sleek kitchen features brand new stainless appliances - including a 4-burner gas cooktop, oven, and dishwasher - complemented by subway-tiled splashbacks and prep-ready benchtops.
For the progressive entertainer, step outside and unwind beneath the gabled, all-weather patio that's made for gathering; backdropped by lush landscaping and firepit vibes that turn weekends into something special.
Add in the gravelled guest parking verge out front (ideal for the trailer, or extra parking), the home's double garaging with secure internal entry, and bordering veggie beds offering a leg-up on self-sufficiency, and you've got a home that's as practical as it is impressive.
Rounding off the floorplan's easy flow, the master bedroom enjoys privacy at the northern end with a walk-in robe and sparkling ensuite, while the remaining three bedrooms are serviced by a three-way bathroom, bathed in timeless neutrals.
From top to toe, inside and out, every manicured inch presents a lifestyle that's easy to fall for.
Think Saturdays, a Lobethal bakery run, maybe a Lobethal Bierhaus pub meal, and Sundays circling the region's top cellar doors. The best part? They're all virtually on your doorstep…
Ease into freedom, stay for the lifestyle:
Modern design on a fastidiously kept 577sqm allotment
Gabled rear verandah + a dedicated, gravelled firepit zone
Double garage with auto panel-lift door + internal access
Gravelled verge for extra parking, or trailer
9ft. (2.7m) ceilings
Central combustion fire & split system R/C A/C comfort
Contemporary open plan kitchen with stainless appliances
Master bedroom with WIR and ensuite
Neutral 3-way family bathroom
Ceiling fans to all bedrooms
Fully fenced
Manual pop-ups to front lawn
A short walk to Lobethal Bakery, Medical Centre & Primary School
Close to leading cellar doors, fresh produce & more…
Property Information:
Title Reference: 6129/562
Zoning: Township
Year Built: 2019
Adcock Real Estate - RLA66526
Andrew Adcock 0418 816 874
Nikki Seppelt 0437 658 067
Jake Adcock 0432 988 464
*Whilst every endeavour has been made to verify the correct details in this marketing neither the agent, vendor or contracted illustrator takes any responsibility for any omission, wrongful inclusion, misdescription or typographical error in this marketing material. Accordingly, all interested parties should make their own enquiries to verify the information provided.
The floor plan included in this marketing material is for illustration purposes only, all measurements are approximate and is intended as an artistic impression only. Any fixtures shown may not necessarily be included in the sale contract and it is essential that any queries are directed to the agent. Any information that is intended to be relied upon should be independently verified.
Built in 2019 and presenting as-new, the home opens to clean lines, timber-look floors, abundant natural light, and a layout that'll breeze through any white-glove test; the cosy combustion fire radiates warmth throughout the interconnecting living, meals and kitchen zones, with summers appeased by split system comfort.
The sleek kitchen features brand new stainless appliances - including a 4-burner gas cooktop, oven, and dishwasher - complemented by subway-tiled splashbacks and prep-ready benchtops.
For the progressive entertainer, step outside and unwind beneath the gabled, all-weather patio that's made for gathering; backdropped by lush landscaping and firepit vibes that turn weekends into something special.
Add in the gravelled guest parking verge out front (ideal for the trailer, or extra parking), the home's double garaging with secure internal entry, and bordering veggie beds offering a leg-up on self-sufficiency, and you've got a home that's as practical as it is impressive.
Rounding off the floorplan's easy flow, the master bedroom enjoys privacy at the northern end with a walk-in robe and sparkling ensuite, while the remaining three bedrooms are serviced by a three-way bathroom, bathed in timeless neutrals.
From top to toe, inside and out, every manicured inch presents a lifestyle that's easy to fall for.
Think Saturdays, a Lobethal bakery run, maybe a Lobethal Bierhaus pub meal, and Sundays circling the region's top cellar doors. The best part? They're all virtually on your doorstep…
Ease into freedom, stay for the lifestyle:
Modern design on a fastidiously kept 577sqm allotment
Gabled rear verandah + a dedicated, gravelled firepit zone
Double garage with auto panel-lift door + internal access
Gravelled verge for extra parking, or trailer
9ft. (2.7m) ceilings
Central combustion fire & split system R/C A/C comfort
Contemporary open plan kitchen with stainless appliances
Master bedroom with WIR and ensuite
Neutral 3-way family bathroom
Ceiling fans to all bedrooms
Fully fenced
Manual pop-ups to front lawn
A short walk to Lobethal Bakery, Medical Centre & Primary School
Close to leading cellar doors, fresh produce & more…
Property Information:
Title Reference: 6129/562
Zoning: Township
Year Built: 2019
Adcock Real Estate - RLA66526
Andrew Adcock 0418 816 874
Nikki Seppelt 0437 658 067
Jake Adcock 0432 988 464
*Whilst every endeavour has been made to verify the correct details in this marketing neither the agent, vendor or contracted illustrator takes any responsibility for any omission, wrongful inclusion, misdescription or typographical error in this marketing material. Accordingly, all interested parties should make their own enquiries to verify the information provided.
The floor plan included in this marketing material is for illustration purposes only, all measurements are approximate and is intended as an artistic impression only. Any fixtures shown may not necessarily be included in the sale contract and it is essential that any queries are directed to the agent. Any information that is intended to be relied upon should be independently verified.
