2 Bartley Street, Nairne
House
Turnkey family luxe in a farmhouse silhouette.
You won't just rise to gorgeous views, but to a fastidious overhaul that gives farmhouse chic a fitting family address, a short stroll from Klose's Foodland.
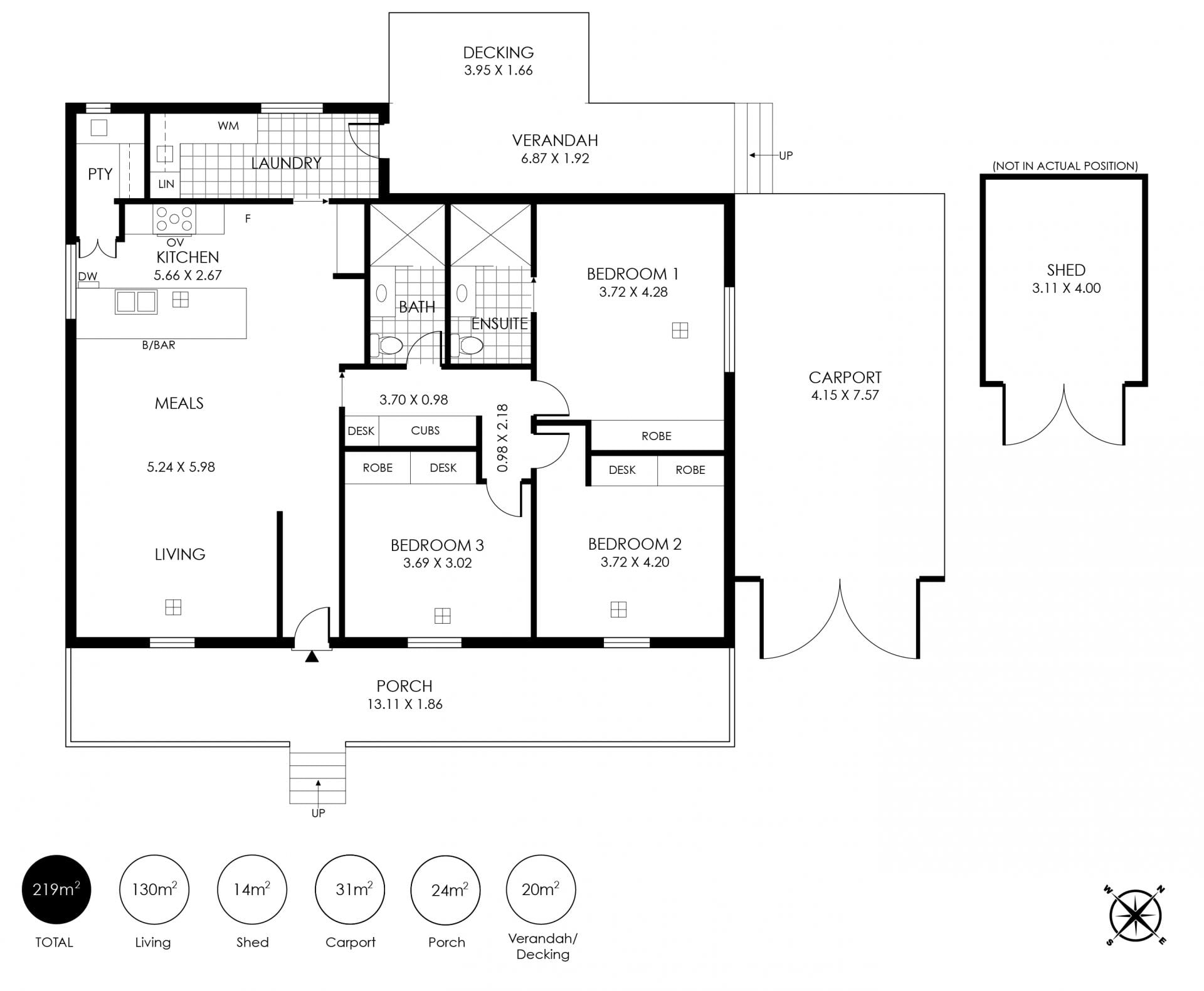
It began as a c.1940s cottage. Today, it's a turnkey three-bedroom entertainer with every inside-outside detail beautifully renewed to dial up its modern comfort, ease, and lifestyle.
From the meandering driveway with its guest verge, to the securely gated, drive-through double carport, and endless backyard BBQs you'll launch from the semi-undercover timber rear deck.
And with a shrub-bordered landscape framed by a halo of hills, spring can't come soon enough.
Inside, soft greys and hybrid plank floors conspire to create a seamless sweep of living, dining and kitchen gatherings, where matte-black sink ware meets honeycomb splashbacks, industrial pendants, a 900mm freestanding cooker, and a breakfast bar fit for a buffet – yet the soft-closing kitchen also conceals a chic butler's pantry behind phantom joinery doors.
Character barn doors serve their privacy purposes, and down the hall, all three sunlit double-sized bedrooms welcome the clean continuity of timber-plank floors, and custom joinery – with inbuilt robes and desks to bedrooms two and three.
Two is always better than one, and both fully tiled designer bathrooms are a luxurious pigeon pair, one set aside as the master ensuite, one as the main, and both with floating vanities.
To the back, the mudroom and laundry blur into yet another well-appointed space; and while the rinse cycle spins, take a moment for yourself on the elevated front deck, literally made for a pot of tea and a wicker chair.
On an 830sqm allotment, the home's gentle elevation simply enhances its far-away farmhouse feel, and with its countless upgrades, this Nairne revision is not only one to adore, but one to own.
With plenty of lifestyle convenience including easy freeway access, Byethorne Park play, Sundays on the lawn at Lot 100, local drops at Howard's or Tin Shed Distillery, and just a 10-minute jaunt from the mecca of Mount Barker.
Impeccable and impossible to fault - this might be the modern farmhouse dream, finally realised…
More aspects to love:
Completely renovated c.1940 build on an elevated 830sqm allotment
Open plan living, meals & kitchen upon entry
Superb hideaway butler's wing to chic kitchen remodel
Rear entertainer's verandah & timber deck
Landscaped front & rear gardens
Open air firepit zone
Rear master bedroom with a barn door ensuite reveal.
Custom robes & desks to bedrooms 2 & 3
2 fully tiled designer bathrooms (with 2 WCs)
Crisp & functional laundry/mudroom
Ducted R/C A/C throughout
Parking verge / turning circle
Concrete floors to rear garden shed
Mains water
NBN connected
2.78m carport clearance
Close to Klose's Foodland & the main street
Property Information:
Title Reference: 5625/243
Zoning: Township neighbourhood
Year Built: 1940
Council Rates: $3,330.73 per annum
Water Rates: $82.30 per quarter
Adcock Real Estate - RLA66526
Andrew Adcock 0418 816 874
Nikki Seppelt 0437 658 067
Jake Adcock 0432 988 464
*Whilst every endeavour has been made to verify the correct details in this marketing neither the agent, vendor or contracted illustrator take any responsibility for any omission, wrongful inclusion, misdescription or typographical error in this marketing material. Accordingly, all interested parties should make their own enquiries to verify the information provided.
The floor plan included in this marketing material is for illustration purposes only, all measurements are approximate and is intended as an artistic impression only. Any fixtures shown may not necessarily be included in the sale contract and it is essential that any queries are directed to the agent. Any information that is intended to be relied upon should be independently verified.
It began as a c.1940s cottage. Today, it's a turnkey three-bedroom entertainer with every inside-outside detail beautifully renewed to dial up its modern comfort, ease, and lifestyle.
From the meandering driveway with its guest verge, to the securely gated, drive-through double carport, and endless backyard BBQs you'll launch from the semi-undercover timber rear deck.
And with a shrub-bordered landscape framed by a halo of hills, spring can't come soon enough.
Inside, soft greys and hybrid plank floors conspire to create a seamless sweep of living, dining and kitchen gatherings, where matte-black sink ware meets honeycomb splashbacks, industrial pendants, a 900mm freestanding cooker, and a breakfast bar fit for a buffet – yet the soft-closing kitchen also conceals a chic butler's pantry behind phantom joinery doors.
Character barn doors serve their privacy purposes, and down the hall, all three sunlit double-sized bedrooms welcome the clean continuity of timber-plank floors, and custom joinery – with inbuilt robes and desks to bedrooms two and three.
Two is always better than one, and both fully tiled designer bathrooms are a luxurious pigeon pair, one set aside as the master ensuite, one as the main, and both with floating vanities.
To the back, the mudroom and laundry blur into yet another well-appointed space; and while the rinse cycle spins, take a moment for yourself on the elevated front deck, literally made for a pot of tea and a wicker chair.
On an 830sqm allotment, the home's gentle elevation simply enhances its far-away farmhouse feel, and with its countless upgrades, this Nairne revision is not only one to adore, but one to own.
With plenty of lifestyle convenience including easy freeway access, Byethorne Park play, Sundays on the lawn at Lot 100, local drops at Howard's or Tin Shed Distillery, and just a 10-minute jaunt from the mecca of Mount Barker.
Impeccable and impossible to fault - this might be the modern farmhouse dream, finally realised…
More aspects to love:
Completely renovated c.1940 build on an elevated 830sqm allotment
Open plan living, meals & kitchen upon entry
Superb hideaway butler's wing to chic kitchen remodel
Rear entertainer's verandah & timber deck
Landscaped front & rear gardens
Open air firepit zone
Rear master bedroom with a barn door ensuite reveal.
Custom robes & desks to bedrooms 2 & 3
2 fully tiled designer bathrooms (with 2 WCs)
Crisp & functional laundry/mudroom
Ducted R/C A/C throughout
Parking verge / turning circle
Concrete floors to rear garden shed
Mains water
NBN connected
2.78m carport clearance
Close to Klose's Foodland & the main street
Property Information:
Title Reference: 5625/243
Zoning: Township neighbourhood
Year Built: 1940
Council Rates: $3,330.73 per annum
Water Rates: $82.30 per quarter
Adcock Real Estate - RLA66526
Andrew Adcock 0418 816 874
Nikki Seppelt 0437 658 067
Jake Adcock 0432 988 464
*Whilst every endeavour has been made to verify the correct details in this marketing neither the agent, vendor or contracted illustrator take any responsibility for any omission, wrongful inclusion, misdescription or typographical error in this marketing material. Accordingly, all interested parties should make their own enquiries to verify the information provided.
The floor plan included in this marketing material is for illustration purposes only, all measurements are approximate and is intended as an artistic impression only. Any fixtures shown may not necessarily be included in the sale contract and it is essential that any queries are directed to the agent. Any information that is intended to be relied upon should be independently verified.
