46 Elizabeth Street, Woodside
House
The weatherboard basics, ready to become game changing.
Woodside's country appeal is naturally inbuilt, yet ambitious visions are invited for this 1970s gem – an up to four-bedder forecasting better days ahead for its 1260sqm corner block.
Large windows flood this flexible family canvas with light against original timber floors, exposed beams, heritage-rich hues, and foundations that present the entry-level or young family buyer an exciting place to start.
While you settle on the dream, consider the dual street frontages, the carport, backyard vehicle entry, workshop with workbench, plus the powered and concreted double garage that never goes astray in the Hills.
The country-style kitchen hosts an electric freestanding cooker, a deep corner pantry, a half-sized dishwasher, and a functional servery pass to the adjoining family room – and together, it's the 1970s edition of open plan living.
Old-school timber-cladding, a cosy combustion fire, and a sliding glass exit to the weather-proof verandah – all of it is potential, simply screaming for your lifestyle plans.
And while it's easy to envisage the evolution of the home's basic bathroom, laundry, and toilet, the multi-purpose finale deserves some clever thought and some extra time in the spotlight.
Lined with storage and long backyard views beneath pitched ceilings, absolutely anything goes within these far walls – be it a combined studio/bedroom, games room, gym or party zone.
Amongst the bedrooms, the walls-down and double-sized master bedroom flirts with an open plan parent's retreat, nursery, dressing robe, or none of the above – instead, put the wall back and gain back another bedroom. The fourth bedroom, across the hall, is ideally sized as a study.
Outdoors, from the slate-paved verandah to the detached pavilion and chook yard, the expansive grounds are open slather, broad with scope for reinvention – STCC.
Woodside land with this much room to move (and improve) is as rare as hens' teeth. Take the home, the block, and its boundless potential - and explore it.
There's more to love:
c.1976 weatherboard construction on a coveted corner 1260sqm block
Valuable backyard vehicle access
Multi-purpose games room, teen or parent's retreat
Lofty roofline with exposed beams
Combustion fire & ceiling fan comfort
Up to 4-bedroom flexibility
Slate-paved outdoor entertaining area
Detached garden pavilion
Shed + workshop with concrete floor and power
20,000L rainwater tank (storage only)
3kW Solar System.
Walking distance to main street, Woodside PS, recreation park & swimming centre
Endless scope to update, improve, extend or totally transform
Subdivision potential (STCC)
*Near new 7hp reverse cycle split system; not installed but included in the sale.
Property Information:
Title Reference: 5466/616
Zoning: Township
Year Built: 1976
Council Rates: $TBA per annum
Water Rates: $83.20 per quarter
Estimated rental assessment: $500 - $550 per week (written rental assessment can be provided upon request)
Adcock Real Estate - RLA66526
Nikki Seppelt 0437 658 067
Andrew Adcock 0418 816 874
Jake Adcock 0432 988 464
*Please note: some images have been virtually staged to better showcase the true potential of rooms/space and to respect occupiers' privacy.
*Whilst every endeavour has been made to verify the correct details in this marketing neither the agent, vendor or contracted illustrator take any responsibility for any omission, wrongful inclusion, misdescription or typographical error in this marketing material. Accordingly, all interested parties should make their own enquiries to verify the information provided.
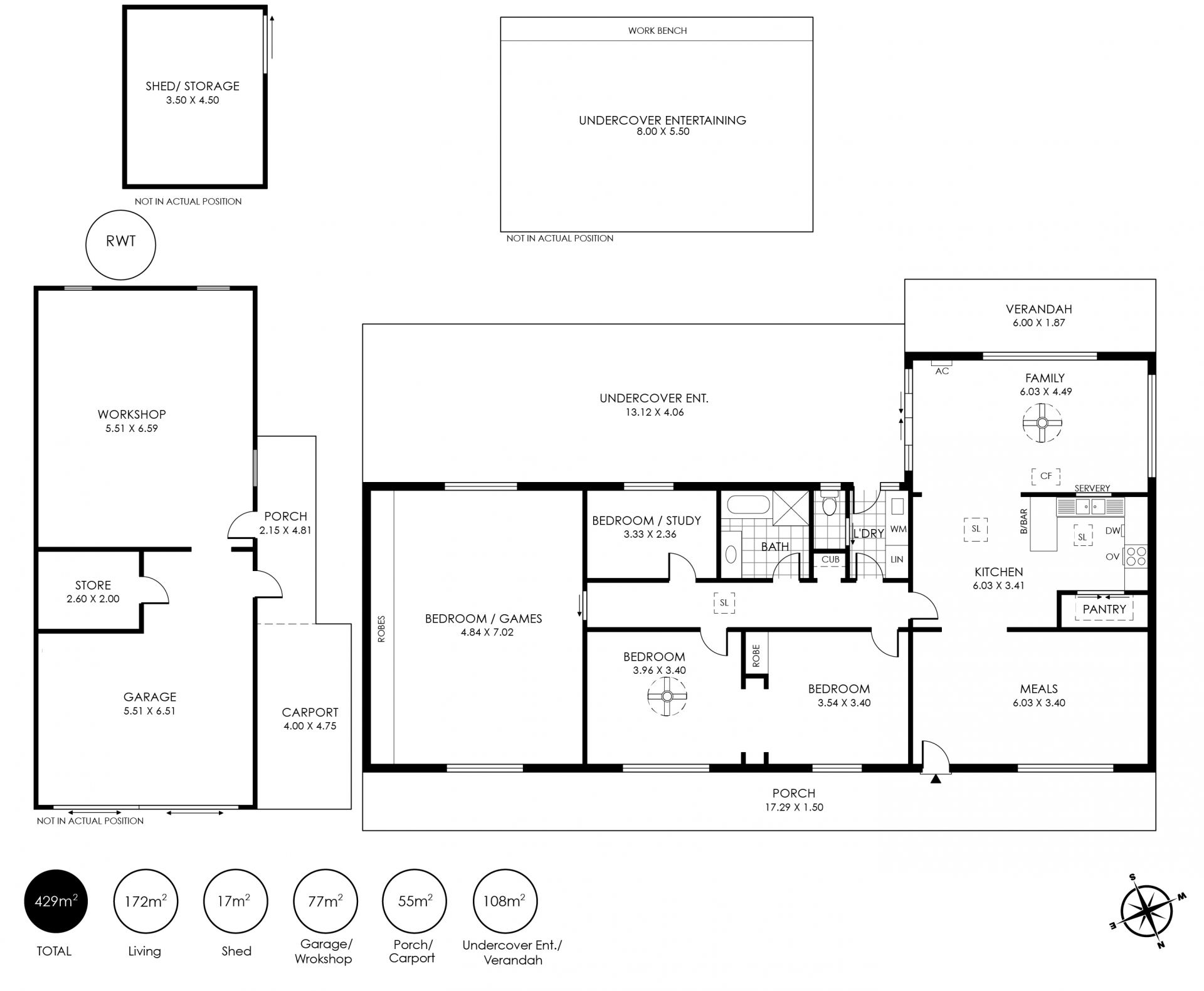
The floor plan included in this marketing material is for illustration purposes only, all measurements are approximate and is intended as an artistic impression only. Any fixtures shown may not necessarily be included in the sale contract and it is essential that any queries are directed to the agent. Any information that is intended to be relied upon should be independently verified. Please note: floor plan used in this marketing is from the previous sale and details may have changed slightly.
Property Managers have provided a written rental assessment based on images, floor plan and information provided by the Agent/Vendor – an accurate rental appraisal figure will require a property viewing.
Large windows flood this flexible family canvas with light against original timber floors, exposed beams, heritage-rich hues, and foundations that present the entry-level or young family buyer an exciting place to start.
While you settle on the dream, consider the dual street frontages, the carport, backyard vehicle entry, workshop with workbench, plus the powered and concreted double garage that never goes astray in the Hills.
The country-style kitchen hosts an electric freestanding cooker, a deep corner pantry, a half-sized dishwasher, and a functional servery pass to the adjoining family room – and together, it's the 1970s edition of open plan living.
Old-school timber-cladding, a cosy combustion fire, and a sliding glass exit to the weather-proof verandah – all of it is potential, simply screaming for your lifestyle plans.
And while it's easy to envisage the evolution of the home's basic bathroom, laundry, and toilet, the multi-purpose finale deserves some clever thought and some extra time in the spotlight.
Lined with storage and long backyard views beneath pitched ceilings, absolutely anything goes within these far walls – be it a combined studio/bedroom, games room, gym or party zone.
Amongst the bedrooms, the walls-down and double-sized master bedroom flirts with an open plan parent's retreat, nursery, dressing robe, or none of the above – instead, put the wall back and gain back another bedroom. The fourth bedroom, across the hall, is ideally sized as a study.
Outdoors, from the slate-paved verandah to the detached pavilion and chook yard, the expansive grounds are open slather, broad with scope for reinvention – STCC.
Woodside land with this much room to move (and improve) is as rare as hens' teeth. Take the home, the block, and its boundless potential - and explore it.
There's more to love:
c.1976 weatherboard construction on a coveted corner 1260sqm block
Valuable backyard vehicle access
Multi-purpose games room, teen or parent's retreat
Lofty roofline with exposed beams
Combustion fire & ceiling fan comfort
Up to 4-bedroom flexibility
Slate-paved outdoor entertaining area
Detached garden pavilion
Shed + workshop with concrete floor and power
20,000L rainwater tank (storage only)
3kW Solar System.
Walking distance to main street, Woodside PS, recreation park & swimming centre
Endless scope to update, improve, extend or totally transform
Subdivision potential (STCC)
*Near new 7hp reverse cycle split system; not installed but included in the sale.
Property Information:
Title Reference: 5466/616
Zoning: Township
Year Built: 1976
Council Rates: $TBA per annum
Water Rates: $83.20 per quarter
Estimated rental assessment: $500 - $550 per week (written rental assessment can be provided upon request)
Adcock Real Estate - RLA66526
Nikki Seppelt 0437 658 067
Andrew Adcock 0418 816 874
Jake Adcock 0432 988 464
*Please note: some images have been virtually staged to better showcase the true potential of rooms/space and to respect occupiers' privacy.
*Whilst every endeavour has been made to verify the correct details in this marketing neither the agent, vendor or contracted illustrator take any responsibility for any omission, wrongful inclusion, misdescription or typographical error in this marketing material. Accordingly, all interested parties should make their own enquiries to verify the information provided.
The floor plan included in this marketing material is for illustration purposes only, all measurements are approximate and is intended as an artistic impression only. Any fixtures shown may not necessarily be included in the sale contract and it is essential that any queries are directed to the agent. Any information that is intended to be relied upon should be independently verified. Please note: floor plan used in this marketing is from the previous sale and details may have changed slightly.
Property Managers have provided a written rental assessment based on images, floor plan and information provided by the Agent/Vendor – an accurate rental appraisal figure will require a property viewing.
