11 Sandalwood Drive, Woodside
House
Sensibility with a sense of enchantment
When a reproduction villa can strategically work the investor, downsizer, and first-time buyer crowd, it points to this savvy little hills stunner – three-bedroom style, skirted by pickets and double garaging on a high-streetside corner parcel.
While the kids play safely on the fully fenced front lawn, you'll bring the festive cheer to a feature-built backyard gazebo and full-length rear patio, and inside, newly repainted charm opens wide beneath lofty pitched ceilings.
Beautifully refreshed, you'll enter directly to open plan living, gliding across durable floating floors, savouring split system reverse cycle comfort, and the gift of gentle hillside views.
Timber benchtops infuse character into the modern country kitchen hosting a stainless freestanding cooker (electric oven, gas cooktop) with a Bosch dishwasher, farmhouse sink, and chic, shaker-style cabinetry.
The master bedroom is large, giving you ample square metres to furnish beside the classic solo bathroom, upgraded with a new vanity, against the separate WC.
To the far end of the home, two more versatile bedrooms keep nursery, office or playroom pursuits up your sleeve, in a villa footprint that can do no wrong by any demographic.
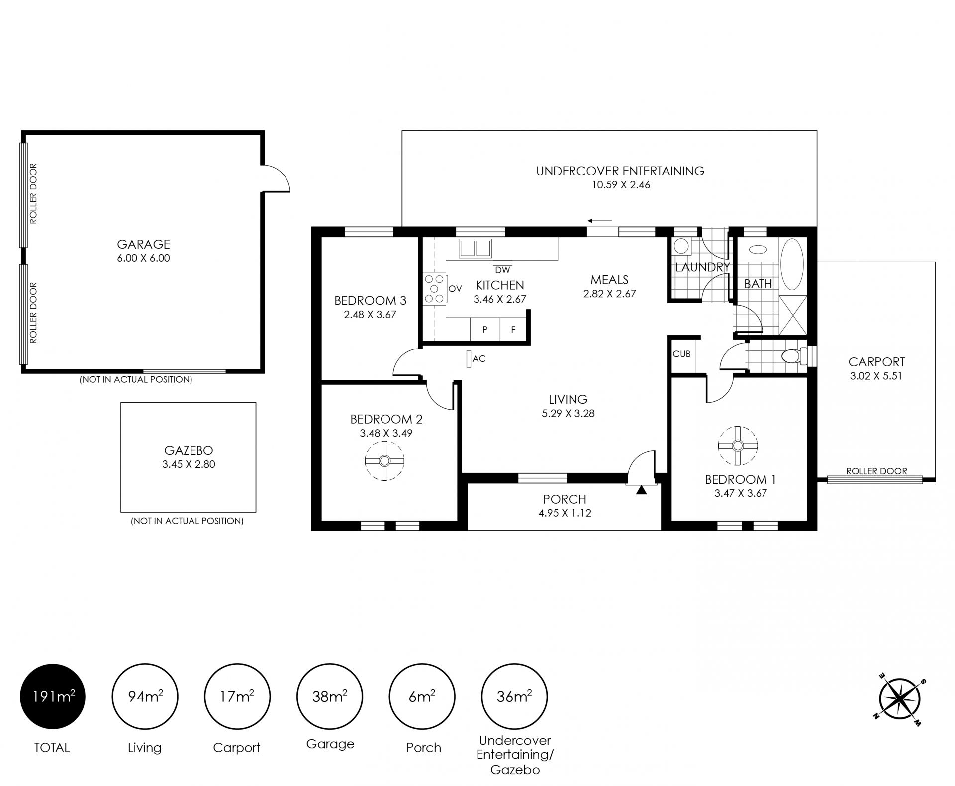
Need trailer space? Double side gates provide the pulling power for the trailer or mower, allowing the family vehicles to come and go via the single carport or the side-by-side sensibility of the powered and concreted dual garage via Honeysuckle Drive.
Picture-perfect practicality.
Coveted for its leafy streetscapes, Bird in Hand Road for its namesake cellar door, Woodside's town heart, cottage cafes and iconic bikeway, and Sandalwood Drive – for lifestyle sensibility with a sense of enchantment.
There's more to love:
Built c.2003 on a neatly established & retained 569sqm allotment
Perfectly suited to the investor, first time buyer, or downsizer market
Feature pitched ceilings & stone façade
Concrete-paved full-length rear veranda
Powered double garage with auto roller doors + a single carport
Additional double-gated side access
Striking gazebo patio & BBQ zone to the ultra-low care backyard
Open plan living & meals
Split system R/C air conditioning & ceiling fan comfort
Shaker-style kitchen hosting timber benchtops, Bosch dishwasher & freestanding electric oven with gas cooktop
3 spacious, carpeted bedrooms – 2 with ceiling fans
Updated vanity to main bathroom, with separate WC
Sweeping corner block, joining Honeysuckle Drive
Easy minutes to the town heart
Property Information:
Title Reference: 5905/398
Zoning: Township
Year Built: 2003
Council Rates: $TBA per annum
Water Rates: $82.30 per quarter
*Estimated rental assessment: $580 - $620 per week (written rental assessment can be provided upon request)
Adcock Real Estate - RLA66526
Andrew Adcock 0418 816 874
Nikki Seppelt 0437 658 067
Jake Adcock 0432 988 464
*Please note: some images have been virtually staged to better showcase the true potential of rooms/space and to respect occupiers' privacy.
*Whilst every endeavour has been made to verify the correct details in this marketing neither the agent, vendor or contracted illustrator take any responsibility for any omission, wrongful inclusion, misdescription or typographical error in this marketing material. Accordingly, all interested parties should make their own enquiries to verify the information provided.
The floor plan included in this marketing material is for illustration purposes only, all measurements are approximate and is intended as an artistic impression only. Any fixtures shown may not necessarily be included in the sale contract and it is essential that any queries are directed to the agent. Any information that is intended to be relied upon should be independently verified.
Property Managers have provided a written rental assessment based on images, floor plan and information provided by the Agent/Vendor – an accurate rental appraisal figure will require a property viewing.
While the kids play safely on the fully fenced front lawn, you'll bring the festive cheer to a feature-built backyard gazebo and full-length rear patio, and inside, newly repainted charm opens wide beneath lofty pitched ceilings.
Beautifully refreshed, you'll enter directly to open plan living, gliding across durable floating floors, savouring split system reverse cycle comfort, and the gift of gentle hillside views.
Timber benchtops infuse character into the modern country kitchen hosting a stainless freestanding cooker (electric oven, gas cooktop) with a Bosch dishwasher, farmhouse sink, and chic, shaker-style cabinetry.
The master bedroom is large, giving you ample square metres to furnish beside the classic solo bathroom, upgraded with a new vanity, against the separate WC.
To the far end of the home, two more versatile bedrooms keep nursery, office or playroom pursuits up your sleeve, in a villa footprint that can do no wrong by any demographic.
Need trailer space? Double side gates provide the pulling power for the trailer or mower, allowing the family vehicles to come and go via the single carport or the side-by-side sensibility of the powered and concreted dual garage via Honeysuckle Drive.
Picture-perfect practicality.
Coveted for its leafy streetscapes, Bird in Hand Road for its namesake cellar door, Woodside's town heart, cottage cafes and iconic bikeway, and Sandalwood Drive – for lifestyle sensibility with a sense of enchantment.
There's more to love:
Built c.2003 on a neatly established & retained 569sqm allotment
Perfectly suited to the investor, first time buyer, or downsizer market
Feature pitched ceilings & stone façade
Concrete-paved full-length rear veranda
Powered double garage with auto roller doors + a single carport
Additional double-gated side access
Striking gazebo patio & BBQ zone to the ultra-low care backyard
Open plan living & meals
Split system R/C air conditioning & ceiling fan comfort
Shaker-style kitchen hosting timber benchtops, Bosch dishwasher & freestanding electric oven with gas cooktop
3 spacious, carpeted bedrooms – 2 with ceiling fans
Updated vanity to main bathroom, with separate WC
Sweeping corner block, joining Honeysuckle Drive
Easy minutes to the town heart
Property Information:
Title Reference: 5905/398
Zoning: Township
Year Built: 2003
Council Rates: $TBA per annum
Water Rates: $82.30 per quarter
*Estimated rental assessment: $580 - $620 per week (written rental assessment can be provided upon request)
Adcock Real Estate - RLA66526
Andrew Adcock 0418 816 874
Nikki Seppelt 0437 658 067
Jake Adcock 0432 988 464
*Please note: some images have been virtually staged to better showcase the true potential of rooms/space and to respect occupiers' privacy.
*Whilst every endeavour has been made to verify the correct details in this marketing neither the agent, vendor or contracted illustrator take any responsibility for any omission, wrongful inclusion, misdescription or typographical error in this marketing material. Accordingly, all interested parties should make their own enquiries to verify the information provided.
The floor plan included in this marketing material is for illustration purposes only, all measurements are approximate and is intended as an artistic impression only. Any fixtures shown may not necessarily be included in the sale contract and it is essential that any queries are directed to the agent. Any information that is intended to be relied upon should be independently verified.
Property Managers have provided a written rental assessment based on images, floor plan and information provided by the Agent/Vendor – an accurate rental appraisal figure will require a property viewing.
