39 Copeland Avenue, Lobethal
House
Simple Hills Style with Wholesome Country Appeal
There's always a place for simplicity - nestled into a no-through road position, this whitewashed weatherboard home makes all the right moves for the first-time buyer, investor or downsizer who'll love its fill of feel-good daylight.
Its next practical highlight: a high-clearance carport suited to the boat, caravan or 4WD, with an extra parking verge for the trailer that doesn't disrupt the daily driveway flow.
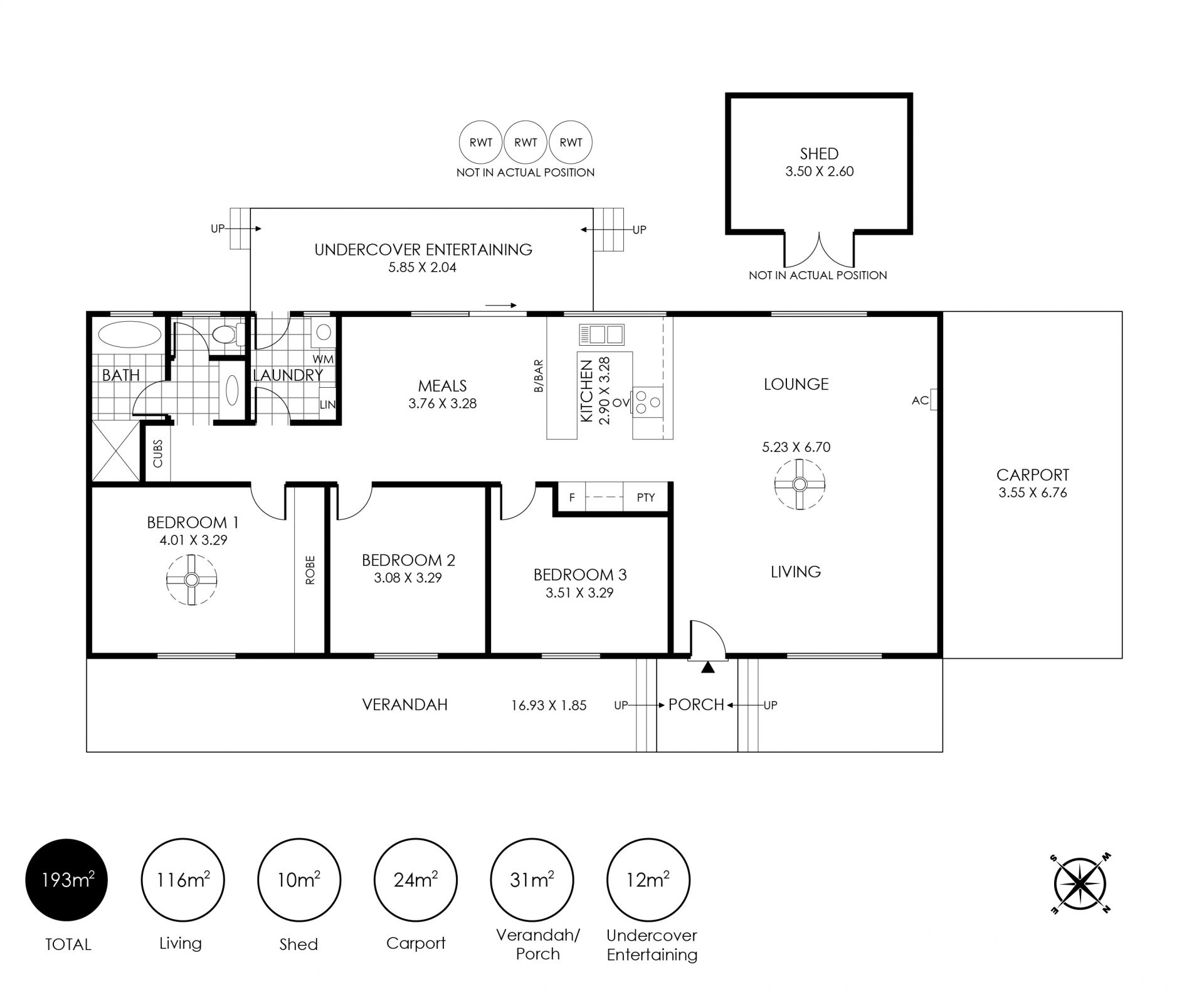
Inside, contemporary hues and raked ceilings bring relaxed continuity across the living, dining and kitchen zones. All three bedrooms, each featuring oversized windows, share use of the classic three-stage bathroom; the parent's suite hosting full-height robes, a ceiling fan, and a little extra legroom.
High-gloss laminate benchtops define the practical U-shaped kitchen, while casual dining drifts outside to the rear deck, canopied by mature garden and patio shade. In view, the neatly retained backyard sidesteps for a grassed pet or play area and bonus gated access.
Radiating split system reverse-cycle air conditioning comfort within, the fully fenced and neatly retained backyard offers a small utility shed and three concrete water tanks to keep the low-care grounds in tip-top shape.
Easy to live in or to invest in, you can't help but admire this country-minded neighbourhood. Walk to Lobethal Oval for a kick and a catch, stop by the bakery on the way home, and discover why even wider buyer circles now appreciate the fresh Hills air and wholesome streetscapes of Lobethal's well-connected lifestyle.
Cellar doors, a realistic city commute, and real living in a community-rich township. What's not to love?
More reasons to inspect:
Quiet no-through road position
3.2m clearance carport, ideal for the boat or caravan
Concrete driveway + parking verge
U-shaped kitchen featuring a Chef electric oven, laminate benchtops and backyard views
Casual meals with flow to a sweeping rear deck
Front-facing bedrooms – the master features a ceiling fan and sliding robes
Split system R/C A/C comfort
3-stage classic bathroom
Basic laundry + linen closet at end of hall
Deck stairs lead to shrubbed, low-care gardens
Fully fenced backyard with rear gate access
Small utility shed on a concrete slab
3 concrete rainwater tanks – for garden use only
Convenient town-heart connection
A 30-minute drive to Tea Tree Plaza or the Tollgate.
Property Information:
Title Reference: 6265/293
Zoning: Township
Year Built: 2009
Council Rates: $TBA per annum
Water Rates: $203.14 per quarter
*Estimated rental assessment: $530 - $560 per week (written rental assessment can be provided upon request)
Community Titled: $189.75 per quarter (Admin/Sinking Fund Levy)
Adcock Real Estate - RLA66526
Andrew Adcock 0418 816 874
Nikki Seppelt 0437 658 067
Jake Adcock 0432 988 464
*Please note: some images have been virtually staged to better showcase the true potential of rooms/space and to respect occupiers' privacy.
*Whilst every endeavour has been made to verify the correct details in this marketing neither the agent, vendor or contracted illustrator take any responsibility for any omission, wrongful inclusion, misdescription or typographical error in this marketing material. Accordingly, all interested parties should make their own enquiries to verify the information provided.
The floor plan included in this marketing material is for illustration purposes only, all measurements are approximate and is intended as an artistic impression only. Any fixtures shown may not necessarily be included in the sale contract and it is essential that any queries are directed to the agent. Any information that is intended to be relied upon should be independently verified.
Property Managers have provided a written rental assessment based on images, floor plan and information provided by the Agent/Vendor – an accurate rental appraisal figure will require a property viewing.
Its next practical highlight: a high-clearance carport suited to the boat, caravan or 4WD, with an extra parking verge for the trailer that doesn't disrupt the daily driveway flow.
Inside, contemporary hues and raked ceilings bring relaxed continuity across the living, dining and kitchen zones. All three bedrooms, each featuring oversized windows, share use of the classic three-stage bathroom; the parent's suite hosting full-height robes, a ceiling fan, and a little extra legroom.
High-gloss laminate benchtops define the practical U-shaped kitchen, while casual dining drifts outside to the rear deck, canopied by mature garden and patio shade. In view, the neatly retained backyard sidesteps for a grassed pet or play area and bonus gated access.
Radiating split system reverse-cycle air conditioning comfort within, the fully fenced and neatly retained backyard offers a small utility shed and three concrete water tanks to keep the low-care grounds in tip-top shape.
Easy to live in or to invest in, you can't help but admire this country-minded neighbourhood. Walk to Lobethal Oval for a kick and a catch, stop by the bakery on the way home, and discover why even wider buyer circles now appreciate the fresh Hills air and wholesome streetscapes of Lobethal's well-connected lifestyle.
Cellar doors, a realistic city commute, and real living in a community-rich township. What's not to love?
More reasons to inspect:
Quiet no-through road position
3.2m clearance carport, ideal for the boat or caravan
Concrete driveway + parking verge
U-shaped kitchen featuring a Chef electric oven, laminate benchtops and backyard views
Casual meals with flow to a sweeping rear deck
Front-facing bedrooms – the master features a ceiling fan and sliding robes
Split system R/C A/C comfort
3-stage classic bathroom
Basic laundry + linen closet at end of hall
Deck stairs lead to shrubbed, low-care gardens
Fully fenced backyard with rear gate access
Small utility shed on a concrete slab
3 concrete rainwater tanks – for garden use only
Convenient town-heart connection
A 30-minute drive to Tea Tree Plaza or the Tollgate.
Property Information:
Title Reference: 6265/293
Zoning: Township
Year Built: 2009
Council Rates: $TBA per annum
Water Rates: $203.14 per quarter
*Estimated rental assessment: $530 - $560 per week (written rental assessment can be provided upon request)
Community Titled: $189.75 per quarter (Admin/Sinking Fund Levy)
Adcock Real Estate - RLA66526
Andrew Adcock 0418 816 874
Nikki Seppelt 0437 658 067
Jake Adcock 0432 988 464
*Please note: some images have been virtually staged to better showcase the true potential of rooms/space and to respect occupiers' privacy.
*Whilst every endeavour has been made to verify the correct details in this marketing neither the agent, vendor or contracted illustrator take any responsibility for any omission, wrongful inclusion, misdescription or typographical error in this marketing material. Accordingly, all interested parties should make their own enquiries to verify the information provided.
The floor plan included in this marketing material is for illustration purposes only, all measurements are approximate and is intended as an artistic impression only. Any fixtures shown may not necessarily be included in the sale contract and it is essential that any queries are directed to the agent. Any information that is intended to be relied upon should be independently verified.
Property Managers have provided a written rental assessment based on images, floor plan and information provided by the Agent/Vendor – an accurate rental appraisal figure will require a property viewing.
