35 Mount Torrens Road, Lobethal
House
Skirt town for epic storage & a self-sufficient oasis
It's one part eclectic, and every inch pretty; from the shuttered 1950s façade with town edge rural views; bring your thriving business home to commercial garage security on a verdant 1522sqm plot...
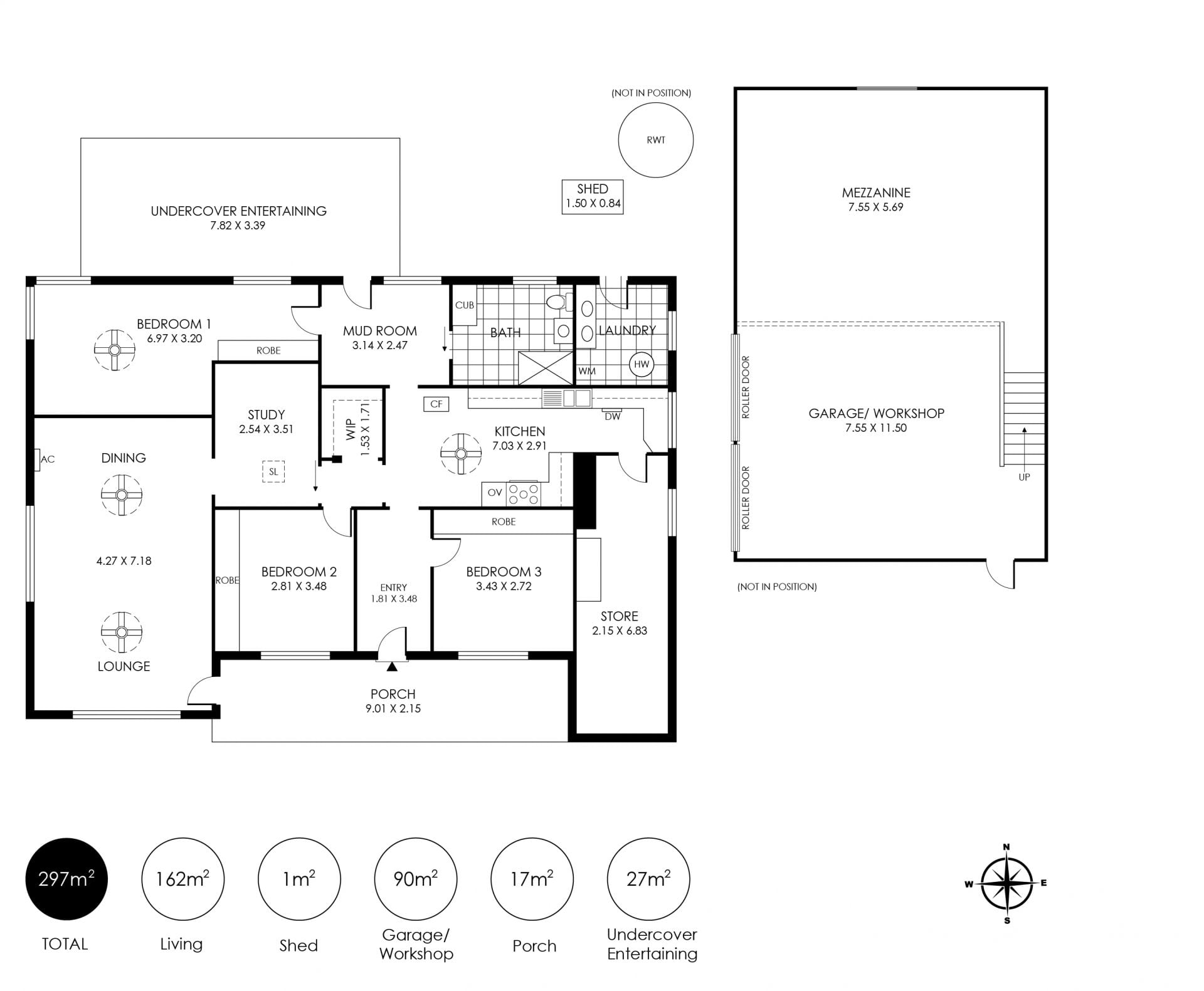
With high ceilings, timber floors, and an interior dress code to delight the entrepreneurial couple or young family, the lengths this three-bedroom, 1950s rewrite has gone to for modern-vintage appeal is also admirable.
From the wide entry foyer, flanked by two robed bedrooms, comes the hero – the sunbathed living and dining west wing, drawn to dual aspect views, decorative cornices and sparkling chandeliers.
A central study and huge walk-in pantry are the precursors to a sweeping subway-tiled kitchen relishing stainless electric appliances and access to a 6.8m x 2.1m (approx.) storage room; for pickles and preserves now, or maybe a butler's pantry in your own good time.
Rounding off the northerly rear corner, bedroom one settles in for sage green serenity, setting the mood beside a robed dressing area.
Blurring its borders, the fenced and layered backyard softens its concrete retaining walls with a spill of green, back-staging the all-weather verandah, primed for BBQs and kids on bikes - it follows with delectable pickings of berries, citrus and stone fruit.
Is it plumbed? Does it matter? The outdoor bath is a vibe, and we're here for it.
At the business end of the block, the enormous garage offers high clearance access, mezzanine storage and workshop viability with side gate vehicle, trailer and caravan parking.
Step up, and a series of planters will flip you into primary production mode under a sky full of stars and a firepit full of kindling.
Whether you're swayed by home-grown goodness, Lobethal's rolling hills, neighbouring vineyards, or popular main street attractions, this one-of-a-kind hilltop oasis is another – simply follow the palms…
Skirt town for something special:
Revamped 1950s 3-bedroom style on an elevated & established 1522sqm allotment
External roller shutter security
7.55m x 11.50m high clearance garage/workshop with approx. 35sqm mezzanine
Central kitchen with stainless appliances, huge WIP & storeroom
North-facing all-weather entertainers' patio
Rear bedroom 1 with dressing robe
BIRs to bedrooms 2 & 3
Dedicated office/study
Slow combustion fire, ceiling fans & split system climate comfort
Expansive mudroom/utility zone against the family bathroom
Private & fully fenced backyard
Plums, lemon, limes, apples, mulberries, raspberries
Retained area with a kid's cubby house
250L electric HWS
55,000L rainwater storage to house (+ mains water)
Rural paddock vistas
Property Information:
Title Reference: 6054/519
Zoning: Productive Rural Landscape
Year Built: 1950
Council Rates: $1,793.34 per annum (2024/2025 Rates)
Water Rates: $83.20 per quarter
*Estimated rental assessment: $590 - $630 per week (written rental assessment can be provided upon request)
Please note: Property photos were taken in January 2025
Adcock Real Estate - RLA66526
Jake Adcock 0432 988 464
Andrew Adcock 0418 816 874
Nikki Seppelt 0437 658 067
*Whilst every endeavour has been made to verify the correct details in this marketing neither the agent, vendor or contracted illustrator take any responsibility for any omission, wrongful inclusion, misdescription or typographical error in this marketing material. Accordingly, all interested parties should make their own enquiries to verify the information provided.
The floor plan included in this marketing material is for illustration purposes only, all measurements are approximate and is intended as an artistic impression only. Any fixtures shown may not necessarily be included in the sale contract and it is essential that any queries are directed to the agent. Any information that is intended to be relied upon should be independently verified.
Property Managers have provided a written rental assessment based on images, floor plan and information provided by the Agent/Vendor – an accurate rental appraisal figure will require a property viewing.
With high ceilings, timber floors, and an interior dress code to delight the entrepreneurial couple or young family, the lengths this three-bedroom, 1950s rewrite has gone to for modern-vintage appeal is also admirable.
From the wide entry foyer, flanked by two robed bedrooms, comes the hero – the sunbathed living and dining west wing, drawn to dual aspect views, decorative cornices and sparkling chandeliers.
A central study and huge walk-in pantry are the precursors to a sweeping subway-tiled kitchen relishing stainless electric appliances and access to a 6.8m x 2.1m (approx.) storage room; for pickles and preserves now, or maybe a butler's pantry in your own good time.
Rounding off the northerly rear corner, bedroom one settles in for sage green serenity, setting the mood beside a robed dressing area.
Blurring its borders, the fenced and layered backyard softens its concrete retaining walls with a spill of green, back-staging the all-weather verandah, primed for BBQs and kids on bikes - it follows with delectable pickings of berries, citrus and stone fruit.
Is it plumbed? Does it matter? The outdoor bath is a vibe, and we're here for it.
At the business end of the block, the enormous garage offers high clearance access, mezzanine storage and workshop viability with side gate vehicle, trailer and caravan parking.
Step up, and a series of planters will flip you into primary production mode under a sky full of stars and a firepit full of kindling.
Whether you're swayed by home-grown goodness, Lobethal's rolling hills, neighbouring vineyards, or popular main street attractions, this one-of-a-kind hilltop oasis is another – simply follow the palms…
Skirt town for something special:
Revamped 1950s 3-bedroom style on an elevated & established 1522sqm allotment
External roller shutter security
7.55m x 11.50m high clearance garage/workshop with approx. 35sqm mezzanine
Central kitchen with stainless appliances, huge WIP & storeroom
North-facing all-weather entertainers' patio
Rear bedroom 1 with dressing robe
BIRs to bedrooms 2 & 3
Dedicated office/study
Slow combustion fire, ceiling fans & split system climate comfort
Expansive mudroom/utility zone against the family bathroom
Private & fully fenced backyard
Plums, lemon, limes, apples, mulberries, raspberries
Retained area with a kid's cubby house
250L electric HWS
55,000L rainwater storage to house (+ mains water)
Rural paddock vistas
Property Information:
Title Reference: 6054/519
Zoning: Productive Rural Landscape
Year Built: 1950
Council Rates: $1,793.34 per annum (2024/2025 Rates)
Water Rates: $83.20 per quarter
*Estimated rental assessment: $590 - $630 per week (written rental assessment can be provided upon request)
Please note: Property photos were taken in January 2025
Adcock Real Estate - RLA66526
Jake Adcock 0432 988 464
Andrew Adcock 0418 816 874
Nikki Seppelt 0437 658 067
*Whilst every endeavour has been made to verify the correct details in this marketing neither the agent, vendor or contracted illustrator take any responsibility for any omission, wrongful inclusion, misdescription or typographical error in this marketing material. Accordingly, all interested parties should make their own enquiries to verify the information provided.
The floor plan included in this marketing material is for illustration purposes only, all measurements are approximate and is intended as an artistic impression only. Any fixtures shown may not necessarily be included in the sale contract and it is essential that any queries are directed to the agent. Any information that is intended to be relied upon should be independently verified.
Property Managers have provided a written rental assessment based on images, floor plan and information provided by the Agent/Vendor – an accurate rental appraisal figure will require a property viewing.
