30 Matthew Smillie Drive, Nairne
House
Your quiet Nairne life realised - with a rumpus room reinvention
From the sweeping streetscape to the spacious 1100sqm block; this slate-fronted three-bedroom home has its heart set on a young family to fill it, and in return, a promise of peaceful country town connection.
Every want the first-time or aspiring country buyer asks for is here, including the scope to improve on it. Dual living spaces, ceiling fans, air conditioning and combustion fire comfort, a master bedroom with ensuite, and a slick new laundry.
Yet it's the family/rumpus room addition that shines the light on fun!
Lovingly maintained, the home's easy flow is met with warm neutral interiors, floating style floors to the main traffic areas, slate floors to the kitchen and meals, and carpets to all three bedrooms.
In visual sync with the living areas, the country timber kitchen hosts a freestanding gas stove, dishwasher, tall pantry and appliance nook, drifting outdoors to the rear family/rumpus room.
When the school holidays still haunt you, this durable ace is your out clause with floorspace worthy of a billiard or table tennis table - even a gym set – and still eons of room to move.
Laundries rarely get a mention – but this sunlit washday workroom is super fresh, hosting crisp shaker style upper and lower joinery, incredible bench space, and vertical panel blinds.
Beyond the paved, undercover entertaining area the shrubbed, retained, and mulched grounds are lifestyle in progress.
It's simply great open space to make your own. Featuring a soft fall zone for the trampoline or play set, apple and stone fruit trees, a sprinkling of veggie planter beds, a gorgeous mix of natural growth, entertaining space, play space, and potential.
The best part? Gentle rear elevation for the Nairne outlooks we love.
The bedroom wing is simple. A comfortable double, a master suite with a refurbished neutral ensuite and walk-in robe, and a third bedroom to the rear with backyard views – all with ceiling fans, storage, and equal reach to the neat, clean and classic main bathroom.
For those with ideas, this is your ideal home.
For the joy of Byethorne Park, Howard's Vineyard, proximity to the metropolitan hub of Mount Barker, and the beauty of a tightly held township that's on everyone's radar – this could be your new Nairne life, realised.
There's more to love:
Slate-fronted 1990s conventional home on 1100sqm approx.
Durable slate floor arrival – floating style floors to main living areas
Rumpus/family room addition with split system R/C A/C
Country timber kitchen with a gas freestanding cooker + dishwasher
Contemporary laundry makeover with sweeping benchtops and shaker-style joinery
Slow combustion fire to family room
Fujitsu split system R/C A/C
Ceiling fans and sliding robes to all 3 bedrooms
Master bedroom features a WIR and neutral ensuite
Hallway linen closet
Large, family-sized rear yard with fruit trees, planter beds, and a huge soft play area
Incredible landscaping and lifestyle potential
Double-length carport
Rear garden shed
Property Information:
Title Reference: 5397/444
Zoning: Neighbourhood
Year Built: 1992
Council Rates: $3,176.29 per annum
Water Rates: $82.30 per quarter
*Estimated rental assessment: $600 - $630 per week (written rental assessment can be provided upon request)
Adcock Real Estate - RLA66526
Andrew Adcock 0418 816 874
Nikki Seppelt 0437 658 067
Jake Adcock 0432 988 464
*Whilst every endeavour has been made to verify the correct details in this marketing neither the agent, vendor or contracted illustrator take any responsibility for any omission, wrongful inclusion, misdescription or typographical error in this marketing material. Accordingly, all interested parties should make their own enquiries to verify the information provided.
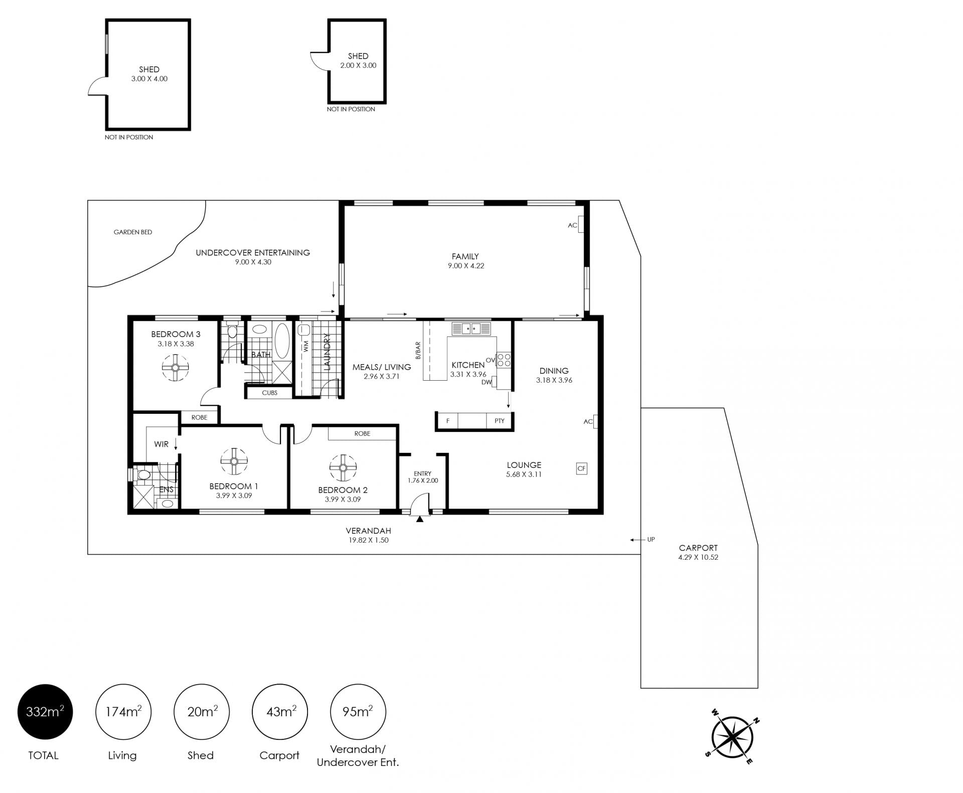
The floor plan included in this marketing material is for illustration purposes only, all measurements are approximate and is intended as an artistic impression only. Any fixtures shown may not necessarily be included in the sale contract and it is essential that any queries are directed to the agent. Any information that is intended to be relied upon should be independently verified.
Property Managers have provided a written rental assessment based on images, floor plan and information provided by the Agent/Vendor – an accurate rental appraisal figure will require a property viewing.
Every want the first-time or aspiring country buyer asks for is here, including the scope to improve on it. Dual living spaces, ceiling fans, air conditioning and combustion fire comfort, a master bedroom with ensuite, and a slick new laundry.
Yet it's the family/rumpus room addition that shines the light on fun!
Lovingly maintained, the home's easy flow is met with warm neutral interiors, floating style floors to the main traffic areas, slate floors to the kitchen and meals, and carpets to all three bedrooms.
In visual sync with the living areas, the country timber kitchen hosts a freestanding gas stove, dishwasher, tall pantry and appliance nook, drifting outdoors to the rear family/rumpus room.
When the school holidays still haunt you, this durable ace is your out clause with floorspace worthy of a billiard or table tennis table - even a gym set – and still eons of room to move.
Laundries rarely get a mention – but this sunlit washday workroom is super fresh, hosting crisp shaker style upper and lower joinery, incredible bench space, and vertical panel blinds.
Beyond the paved, undercover entertaining area the shrubbed, retained, and mulched grounds are lifestyle in progress.
It's simply great open space to make your own. Featuring a soft fall zone for the trampoline or play set, apple and stone fruit trees, a sprinkling of veggie planter beds, a gorgeous mix of natural growth, entertaining space, play space, and potential.
The best part? Gentle rear elevation for the Nairne outlooks we love.
The bedroom wing is simple. A comfortable double, a master suite with a refurbished neutral ensuite and walk-in robe, and a third bedroom to the rear with backyard views – all with ceiling fans, storage, and equal reach to the neat, clean and classic main bathroom.
For those with ideas, this is your ideal home.
For the joy of Byethorne Park, Howard's Vineyard, proximity to the metropolitan hub of Mount Barker, and the beauty of a tightly held township that's on everyone's radar – this could be your new Nairne life, realised.
There's more to love:
Slate-fronted 1990s conventional home on 1100sqm approx.
Durable slate floor arrival – floating style floors to main living areas
Rumpus/family room addition with split system R/C A/C
Country timber kitchen with a gas freestanding cooker + dishwasher
Contemporary laundry makeover with sweeping benchtops and shaker-style joinery
Slow combustion fire to family room
Fujitsu split system R/C A/C
Ceiling fans and sliding robes to all 3 bedrooms
Master bedroom features a WIR and neutral ensuite
Hallway linen closet
Large, family-sized rear yard with fruit trees, planter beds, and a huge soft play area
Incredible landscaping and lifestyle potential
Double-length carport
Rear garden shed
Property Information:
Title Reference: 5397/444
Zoning: Neighbourhood
Year Built: 1992
Council Rates: $3,176.29 per annum
Water Rates: $82.30 per quarter
*Estimated rental assessment: $600 - $630 per week (written rental assessment can be provided upon request)
Adcock Real Estate - RLA66526
Andrew Adcock 0418 816 874
Nikki Seppelt 0437 658 067
Jake Adcock 0432 988 464
*Whilst every endeavour has been made to verify the correct details in this marketing neither the agent, vendor or contracted illustrator take any responsibility for any omission, wrongful inclusion, misdescription or typographical error in this marketing material. Accordingly, all interested parties should make their own enquiries to verify the information provided.
The floor plan included in this marketing material is for illustration purposes only, all measurements are approximate and is intended as an artistic impression only. Any fixtures shown may not necessarily be included in the sale contract and it is essential that any queries are directed to the agent. Any information that is intended to be relied upon should be independently verified.
Property Managers have provided a written rental assessment based on images, floor plan and information provided by the Agent/Vendor – an accurate rental appraisal figure will require a property viewing.
