16 Talunga Street, Birdwood
House
Magic ready to be recast in a retro-vintage canvas
Set on a valuable half-acre, this three-bedroom bluestone villa will make the long-term thinkers sit up straight, knowing the real payback will come once they peel back the retro layers.
The 1910 villa's expressive interiors are the legacy of its 1970s era – vinyl flooring, daring wallpaper, shag-pile carpets, wall panelling, and experimental joinery that proves what some funky ingenuity can do when bravado leads the way.
In this case, it's the study turn studio/collector/den/fourth bedroom flexibility built in – the psychedelic curtain revealing more of its store and display aptitude.
Every room has an identity, courtesy of the wallpaper. Off the central hallway, two leading bedrooms, each feature timber slatted ceilings, one with tall built-in storage and one with a brick fireplace.
The kitchen/meals area pairs its eye-catching fun with functionality – a freestanding Emillia 5-burner gas stove, double-fridge provisions, handy pull-out pantry drawers, skylight, and hovering industrial pendants. It's modest but makes sense.
Bedroom three could happily house two single beds against twin sets of storage – albeit vintage – and the refreshed bathroom, modified c.2022, features a bath with spa jets.
In short: every inch is restoration ready.
Original features remain the backbone: sash windows, high timber-clad ceilings and feature fireplaces, culminating in a large rear lounge wrapped in deep hues and warmed by a combustion fire.
All the hallmarks of a home ready to return to its original roots, recast through a 2026 lens.
As the block keeps going, the more it keeps giving. Bulbs, mulched gardens, a greenhouse, aviary, water tanks, and vehicle access to the concrete-floored shed with power and lights.
A stroll along Talunga Street quickly reinforces what a pot of pure gold this really is - a plot aching for the magic touch of a project buyer or willing family ready to maximise the house and land for an exceptional Birdwood lifestyle.
This is one of the Adelaide Hills' most cherished historic towns – full of heritage streetscapes, local cafés, community and touristic spirit, just 30km from Tea Tree Plaza.
This is far from a finished product - and therein lies its beauty.
More reasons to inspect:
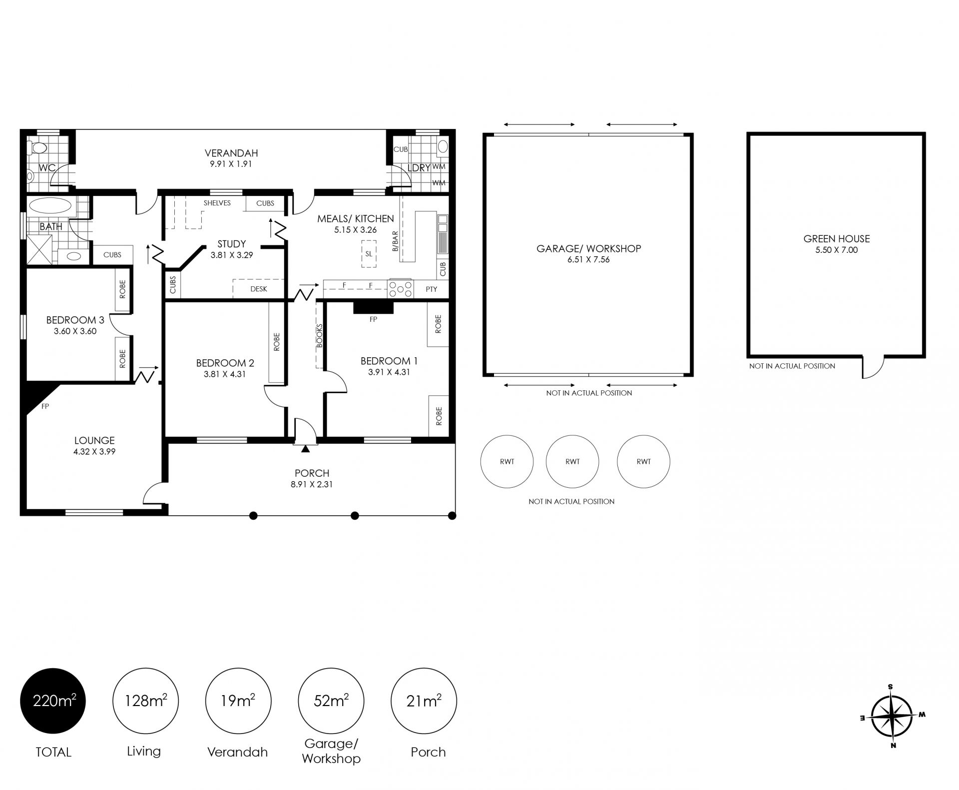
C1910 3-bedroom bluestone villa on 2188sqm
Original character stonework and quoining
Side-by-side driveway parking to the rear garage
3 bedrooms with robes + flexible study space (or 4th bedroom option)
Modest timber kitchen with good pantry space and double fridge provisions
Bathroom features updated shower, bath and vanity – c.2022
External laundry & separate external WC
Established stone garden retaining walls
Mulched gardens, bird aviary and greenhouse
2 potting sheds
Pear trees
House and gardens are on mains water
House also plumbed to rainwater – with switchover (not WC)
A vintage ready to respond beautifully with a vision.
Property Information:
Title Reference: 5468/544
Zoning: Township
Year Built: 1910
Council Rates: $TBA per annum
Water Rates: $82.30 per quarter
*Estimated rental assessment: $510 - $540 per week (written rental assessment can be provided upon request)
Adcock Real Estate - RLA66526
Andrew Adcock 0418 816 874
Nikki Seppelt 0437 658 067
Jake Adcock 0432 988 464
*Whilst every endeavour has been made to verify the correct details in this marketing neither the agent, vendor or contracted illustrator take any responsibility for any omission, wrongful inclusion, misdescription or typographical error in this marketing material. Accordingly, all interested parties should make their own enquiries to verify the information provided.
The floor plan included in this marketing material is for illustration purposes only, all measurements are approximate and is intended as an artistic impression only. Any fixtures shown may not necessarily be included in the sale contract and it is essential that any queries are directed to the agent. Any information that is intended to be relied upon should be independently verified.
Property Managers have provided a written rental assessment based on images, floor plan and information provided by the Agent/Vendor – an accurate rental appraisal figure will require a property viewing.
The 1910 villa's expressive interiors are the legacy of its 1970s era – vinyl flooring, daring wallpaper, shag-pile carpets, wall panelling, and experimental joinery that proves what some funky ingenuity can do when bravado leads the way.
In this case, it's the study turn studio/collector/den/fourth bedroom flexibility built in – the psychedelic curtain revealing more of its store and display aptitude.
Every room has an identity, courtesy of the wallpaper. Off the central hallway, two leading bedrooms, each feature timber slatted ceilings, one with tall built-in storage and one with a brick fireplace.
The kitchen/meals area pairs its eye-catching fun with functionality – a freestanding Emillia 5-burner gas stove, double-fridge provisions, handy pull-out pantry drawers, skylight, and hovering industrial pendants. It's modest but makes sense.
Bedroom three could happily house two single beds against twin sets of storage – albeit vintage – and the refreshed bathroom, modified c.2022, features a bath with spa jets.
In short: every inch is restoration ready.
Original features remain the backbone: sash windows, high timber-clad ceilings and feature fireplaces, culminating in a large rear lounge wrapped in deep hues and warmed by a combustion fire.
All the hallmarks of a home ready to return to its original roots, recast through a 2026 lens.
As the block keeps going, the more it keeps giving. Bulbs, mulched gardens, a greenhouse, aviary, water tanks, and vehicle access to the concrete-floored shed with power and lights.
A stroll along Talunga Street quickly reinforces what a pot of pure gold this really is - a plot aching for the magic touch of a project buyer or willing family ready to maximise the house and land for an exceptional Birdwood lifestyle.
This is one of the Adelaide Hills' most cherished historic towns – full of heritage streetscapes, local cafés, community and touristic spirit, just 30km from Tea Tree Plaza.
This is far from a finished product - and therein lies its beauty.
More reasons to inspect:
C1910 3-bedroom bluestone villa on 2188sqm
Original character stonework and quoining
Side-by-side driveway parking to the rear garage
3 bedrooms with robes + flexible study space (or 4th bedroom option)
Modest timber kitchen with good pantry space and double fridge provisions
Bathroom features updated shower, bath and vanity – c.2022
External laundry & separate external WC
Established stone garden retaining walls
Mulched gardens, bird aviary and greenhouse
2 potting sheds
Pear trees
House and gardens are on mains water
House also plumbed to rainwater – with switchover (not WC)
A vintage ready to respond beautifully with a vision.
Property Information:
Title Reference: 5468/544
Zoning: Township
Year Built: 1910
Council Rates: $TBA per annum
Water Rates: $82.30 per quarter
*Estimated rental assessment: $510 - $540 per week (written rental assessment can be provided upon request)
Adcock Real Estate - RLA66526
Andrew Adcock 0418 816 874
Nikki Seppelt 0437 658 067
Jake Adcock 0432 988 464
*Whilst every endeavour has been made to verify the correct details in this marketing neither the agent, vendor or contracted illustrator take any responsibility for any omission, wrongful inclusion, misdescription or typographical error in this marketing material. Accordingly, all interested parties should make their own enquiries to verify the information provided.
The floor plan included in this marketing material is for illustration purposes only, all measurements are approximate and is intended as an artistic impression only. Any fixtures shown may not necessarily be included in the sale contract and it is essential that any queries are directed to the agent. Any information that is intended to be relied upon should be independently verified.
Property Managers have provided a written rental assessment based on images, floor plan and information provided by the Agent/Vendor – an accurate rental appraisal figure will require a property viewing.
