83B Grevillea Way, Woodside
House
An uplifting revision for the most rewarding family start
Immaculate from the get-go, the real surprise is on the inside - reimagined interiors, a quietly modern evolution, and a three-bedroom home primed to kick-start family life superbly, on an enriching 505sqm allotment.
The millennium-built home's fresh contemporary hues sing beside new fixtures, window furnishings, hybrid floating floors, an all-new kitchen and bathroom - adding immeasurable value for the investor, downsizer or young family.
From entry, the master bedroom whisks you into soft serenity thanks to floaty sheers, a soothing wall scene, and drop pendant lighting. The mood rounding off with walk-in robes, a crisp ensuite, and automatic roller shutters for fulfilling block-out.
In easy reach as a parent's retreat/TV zone, the first of two living zones trades winter's chill for cosy combustion fire warmth (with heat transfer) ahead of a barn door transition into the open plan kitchen and family meals area.
Sleek laminates, sepia tones, a Westinghouse oven, electric cooktop, and subway-tiled splashbacks – the kitchen's new mission also amasses bench space, punctuated by a matte black double sink.
You'll swivel from the bar stools to casual dining, drift outdoors through glass sliders, while the entire zone keeps comfortable with split system reverse-cycle climate control.
Off the family room, two rear bedrooms suit the young, aspiring superheroes, complete with sliding storage; the adjoining laundry, also revamped, maintains the home's fresh modern edge.
Gabled alfresco entertaining, lush garden kids' play, and a rear garage plus garden/woodshed wraps up the fully fenced backyard, and on this quiet edge of town, every metre of this allotment is maximised wisely.
Citrus trees, irrigated veggie beds, a cubby house, and a final sign-off of evergreen magnolias – it's hard to imagine a better Woodside start…
There's more to love:
Torrens titled 2000-built family home on an approx. 505sqm allotment
Single driveway access to a secure garage + trailer verge
Freshly painted throughout
New carpets, blinds, and sheers to master bedroom.
Brand-new ensuite and walk-in robe
New kitchen, laminate benchtops, Bosch dishwasher, Westinghouse electric cooktop and oven
Combustion fire to front lounge with heat transfer to rear living
Split system R/C A/C to family/living
Robes to rear bedrooms 2 and 3
Hybrid floating floors
Stylish 3-way main bathroom with dual vanity basins
Automatic exterior roller shutters to front of home and bedroom 3
Fully fenced and irrigated backyard with lawn, citrus trees, raised veggie beds and a cubby house; front lawn has pop-ups.
Large shedding with concrete floor + garden/woodshed
Easy walking distance to Woodside Primary School and Woodside's main strip
Property Information:
Title Reference: 5810/198
Zoning: Township
Year Built: 2000
Council Rates: $3,144.44 per annum
Water Rates: $82.30 per quarter
*Estimated rental assessment: $580 - $620 per week (written rental assessment can be provided upon request)
Adcock Real Estate - RLA66526
Nikki Seppelt 0437 658 067
Andrew Adcock 0418 816 874
Jake Adcock 0432 988 464
*Whilst every endeavour has been made to verify the correct details in this marketing neither the agent, vendor or contracted illustrator take any responsibility for any omission, wrongful inclusion, misdescription or typographical error in this marketing material. Accordingly, all interested parties should make their own enquiries to verify the information provided.
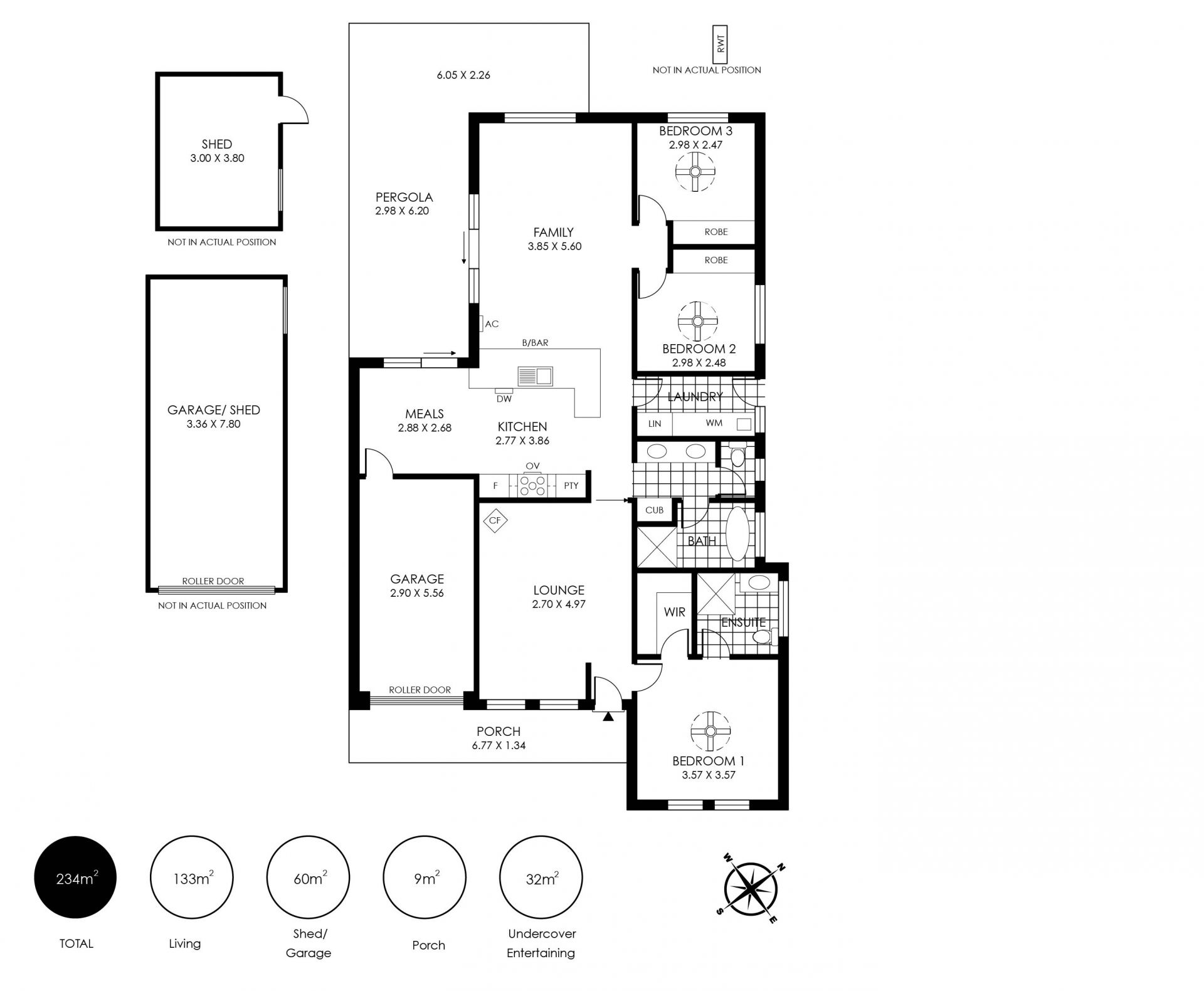
The floor plan included in this marketing material is for illustration purposes only, all measurements are approximate and is intended as an artistic impression only. Any fixtures shown may not necessarily be included in the sale contract and it is essential that any queries are directed to the agent. Any information that is intended to be relied upon should be independently verified.
Property Managers have provided a written rental assessment based on images, floor plan and information provided by the Agent/Vendor – an accurate rental appraisal figure will require a property viewing.
The millennium-built home's fresh contemporary hues sing beside new fixtures, window furnishings, hybrid floating floors, an all-new kitchen and bathroom - adding immeasurable value for the investor, downsizer or young family.
From entry, the master bedroom whisks you into soft serenity thanks to floaty sheers, a soothing wall scene, and drop pendant lighting. The mood rounding off with walk-in robes, a crisp ensuite, and automatic roller shutters for fulfilling block-out.
In easy reach as a parent's retreat/TV zone, the first of two living zones trades winter's chill for cosy combustion fire warmth (with heat transfer) ahead of a barn door transition into the open plan kitchen and family meals area.
Sleek laminates, sepia tones, a Westinghouse oven, electric cooktop, and subway-tiled splashbacks – the kitchen's new mission also amasses bench space, punctuated by a matte black double sink.
You'll swivel from the bar stools to casual dining, drift outdoors through glass sliders, while the entire zone keeps comfortable with split system reverse-cycle climate control.
Off the family room, two rear bedrooms suit the young, aspiring superheroes, complete with sliding storage; the adjoining laundry, also revamped, maintains the home's fresh modern edge.
Gabled alfresco entertaining, lush garden kids' play, and a rear garage plus garden/woodshed wraps up the fully fenced backyard, and on this quiet edge of town, every metre of this allotment is maximised wisely.
Citrus trees, irrigated veggie beds, a cubby house, and a final sign-off of evergreen magnolias – it's hard to imagine a better Woodside start…
There's more to love:
Torrens titled 2000-built family home on an approx. 505sqm allotment
Single driveway access to a secure garage + trailer verge
Freshly painted throughout
New carpets, blinds, and sheers to master bedroom.
Brand-new ensuite and walk-in robe
New kitchen, laminate benchtops, Bosch dishwasher, Westinghouse electric cooktop and oven
Combustion fire to front lounge with heat transfer to rear living
Split system R/C A/C to family/living
Robes to rear bedrooms 2 and 3
Hybrid floating floors
Stylish 3-way main bathroom with dual vanity basins
Automatic exterior roller shutters to front of home and bedroom 3
Fully fenced and irrigated backyard with lawn, citrus trees, raised veggie beds and a cubby house; front lawn has pop-ups.
Large shedding with concrete floor + garden/woodshed
Easy walking distance to Woodside Primary School and Woodside's main strip
Property Information:
Title Reference: 5810/198
Zoning: Township
Year Built: 2000
Council Rates: $3,144.44 per annum
Water Rates: $82.30 per quarter
*Estimated rental assessment: $580 - $620 per week (written rental assessment can be provided upon request)
Adcock Real Estate - RLA66526
Nikki Seppelt 0437 658 067
Andrew Adcock 0418 816 874
Jake Adcock 0432 988 464
*Whilst every endeavour has been made to verify the correct details in this marketing neither the agent, vendor or contracted illustrator take any responsibility for any omission, wrongful inclusion, misdescription or typographical error in this marketing material. Accordingly, all interested parties should make their own enquiries to verify the information provided.
The floor plan included in this marketing material is for illustration purposes only, all measurements are approximate and is intended as an artistic impression only. Any fixtures shown may not necessarily be included in the sale contract and it is essential that any queries are directed to the agent. Any information that is intended to be relied upon should be independently verified.
Property Managers have provided a written rental assessment based on images, floor plan and information provided by the Agent/Vendor – an accurate rental appraisal figure will require a property viewing.
